View the 360 tour
Varso Tower is an integral part of HB Reavis' Varso Place in Warsaw. At a record-breaking 310 metres it is the tallest tower in the European Union.
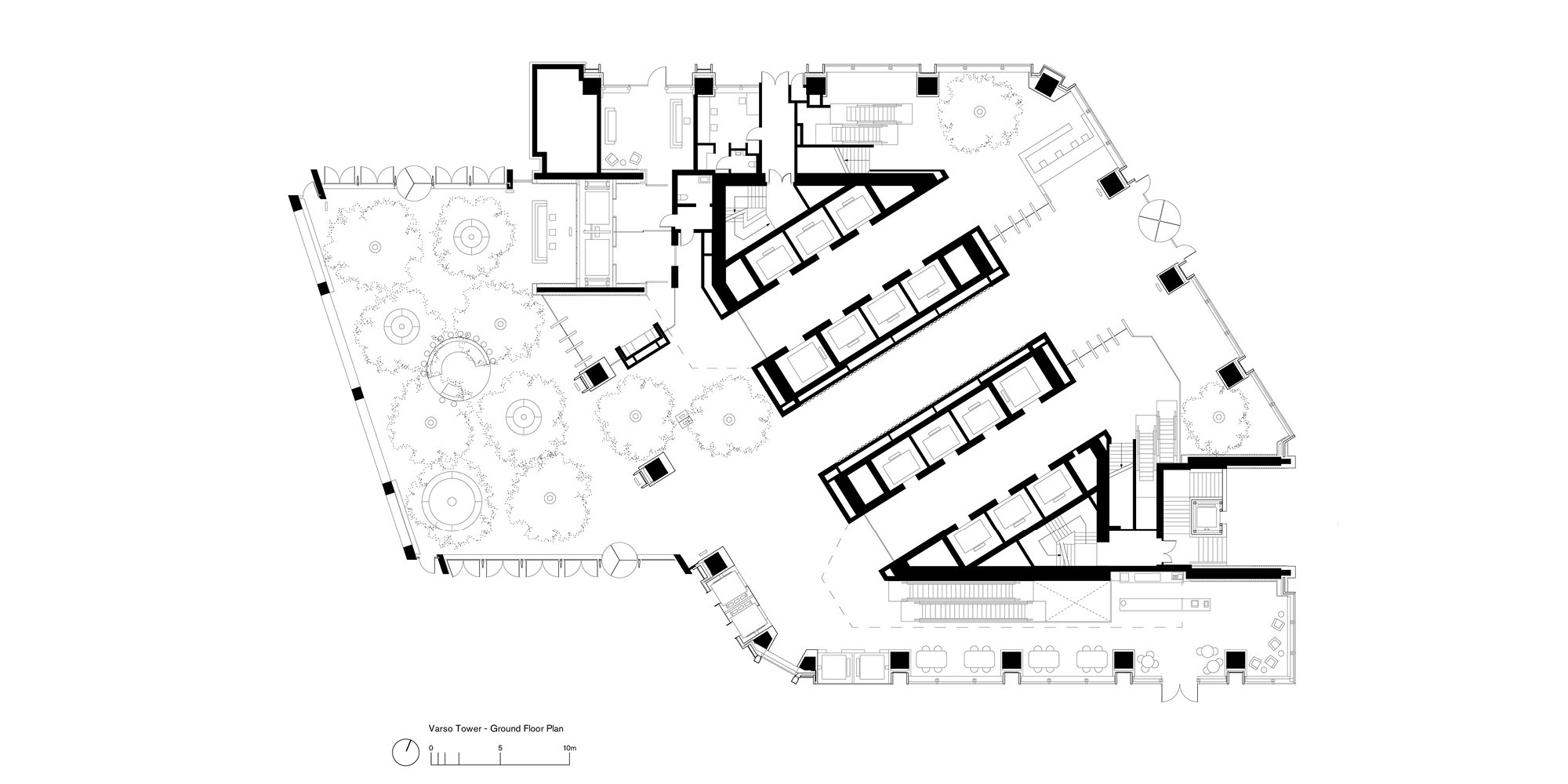
Situated at the corner of Jana Pawla II and Chmielna Street, the tower forms a gateway to the new development and draws people through the building towards the public plaza on its western end that connects to the neighbouring buildings.
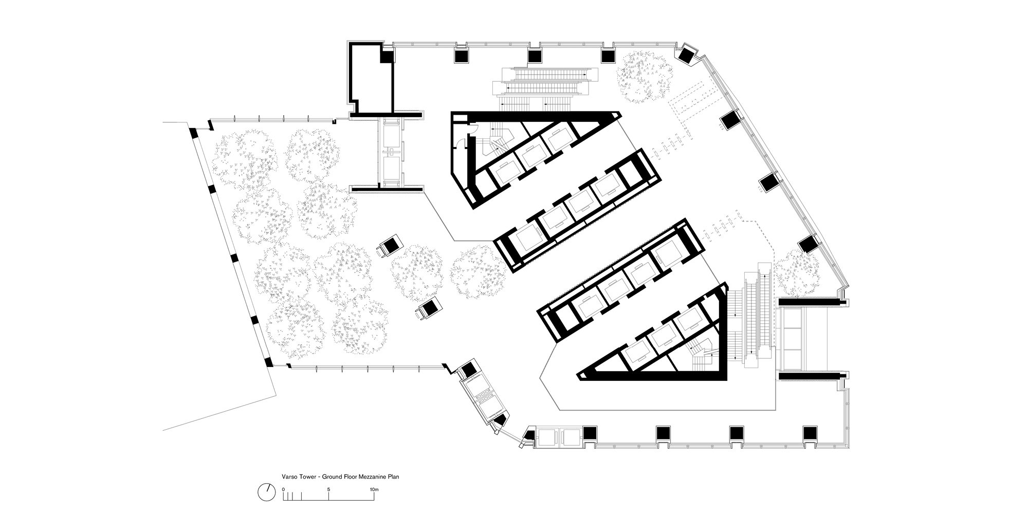
The social heart of the project is a plaza enclosed within a glazed screen, animated with full height trees and benches for people to enjoy the surroundings. This ‘urban room’ forms the point of seamless connection between people who work in the offices – who may use it as a sit-out during breaks – and the public, to access the shops and restaurants in the neighbouring buildings.
The public realm continues at the top of the tower, accessed directly from the ground via two panoramic lifts, with a viewing platform at level 53. This is the highest inhabited floor in Poland with uninterrupted views of the city. Level 49 will soon offer a fully landscaped terrace bar, with sixteen trees, breaking the record for Warsaw’s highest garden.
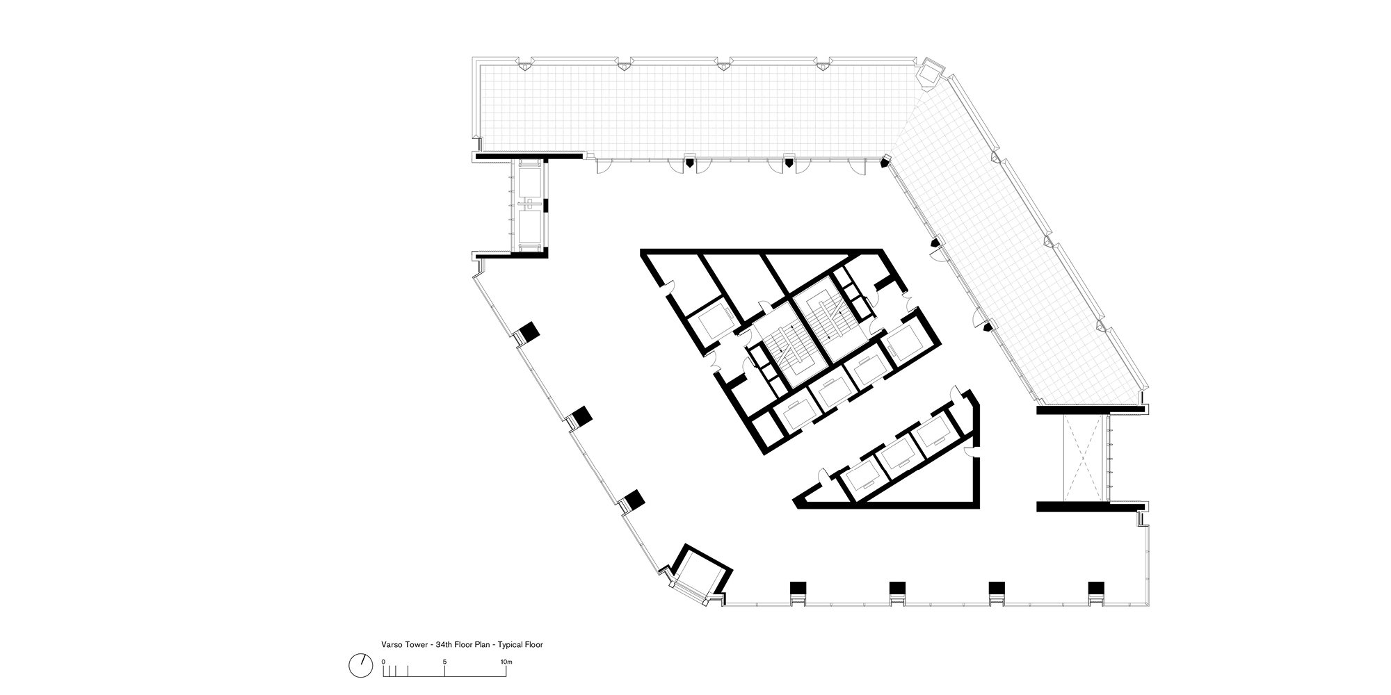
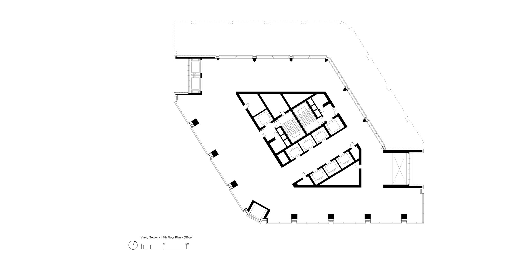
The offices are served by two banks of high-capacity double-deck lifts, with each car serving two floors at any one time. With 70,000 square-metres of premium office space, the tower features large-span floorplates with three-metre clear height for open plan offices.
The building achieves BREEAM Outstanding and WELL Gold certification, due in part to its triple-glazed façades.

























































