Sydney Metro City & Southwest is a 30km rapid transit project in Sydney, Australia. The project extends the Metro North West Line from Chatswood on the North Shore, to Bankstown in the south-west, through Sydney’s Central Business District. Foster + Partners’ design for the city portion of the Sydney Metro C&SW project comprises four integrated station developments, one ‘station only’ proposal and development of the surrounding areas.
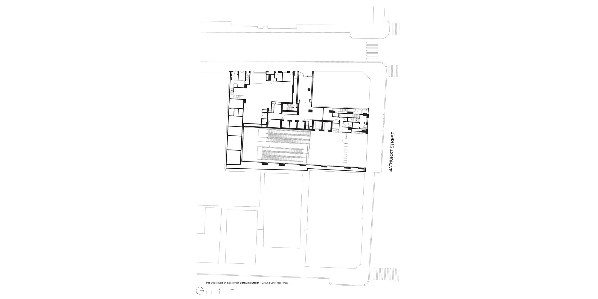
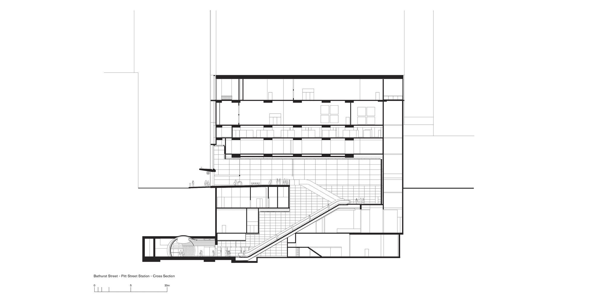
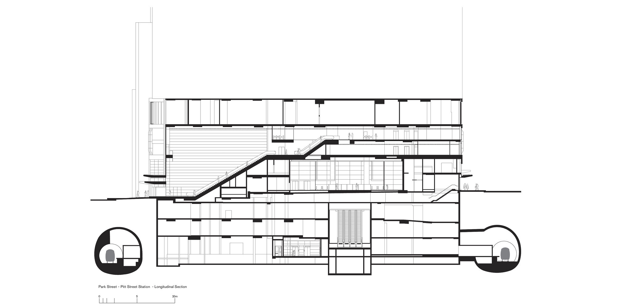
Gadigal Station is located at the junction between Sydney’s southern Central Business District and the Midtown retail precinct. The north station entrance plaza naturally fronts onto the tree lined Park Street which is one of the most prominent east-west streets in Sydney. The entrance is celebrated by a glass veil which allows daylight to flood the station plaza concourse throughout the day.
Above this veil, Parkline Place, a 39-storey commercial tower, has been articulated into three vertical blocks with curved corner glazing. A vertical recess in the facade continues seamlessly through the full height of the tower and is centred directly on the station’s entrance veil. This urban scale massing creates a connection between the station and the tower, articulating the south elevation of the tower.
The development includes new bike parking on Park and Bathurst streets and enhanced pedestrian infrastructure around the station.
































