Following the key principles of The Forestias masterplan, the Six Senses Residences are inspired by traditional Thai architecture to provide the highest levels of sustainability, wellbeing, and connections with nature. The villas are serviced by the nearby Six Senses The Forestias hotel and designed to align with their pioneering approach to wellness, crafted experiences, care towards local communities and the environment.
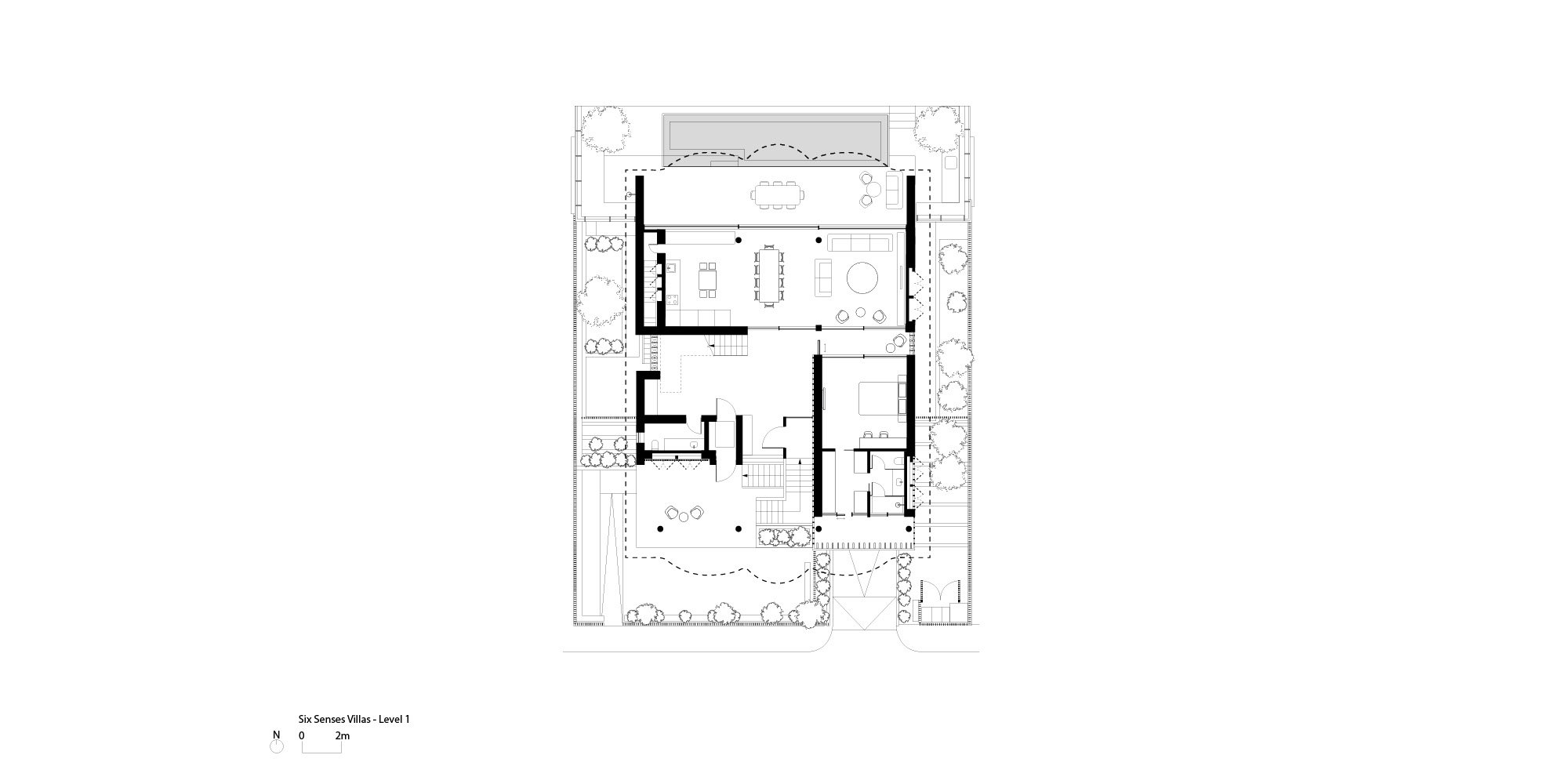
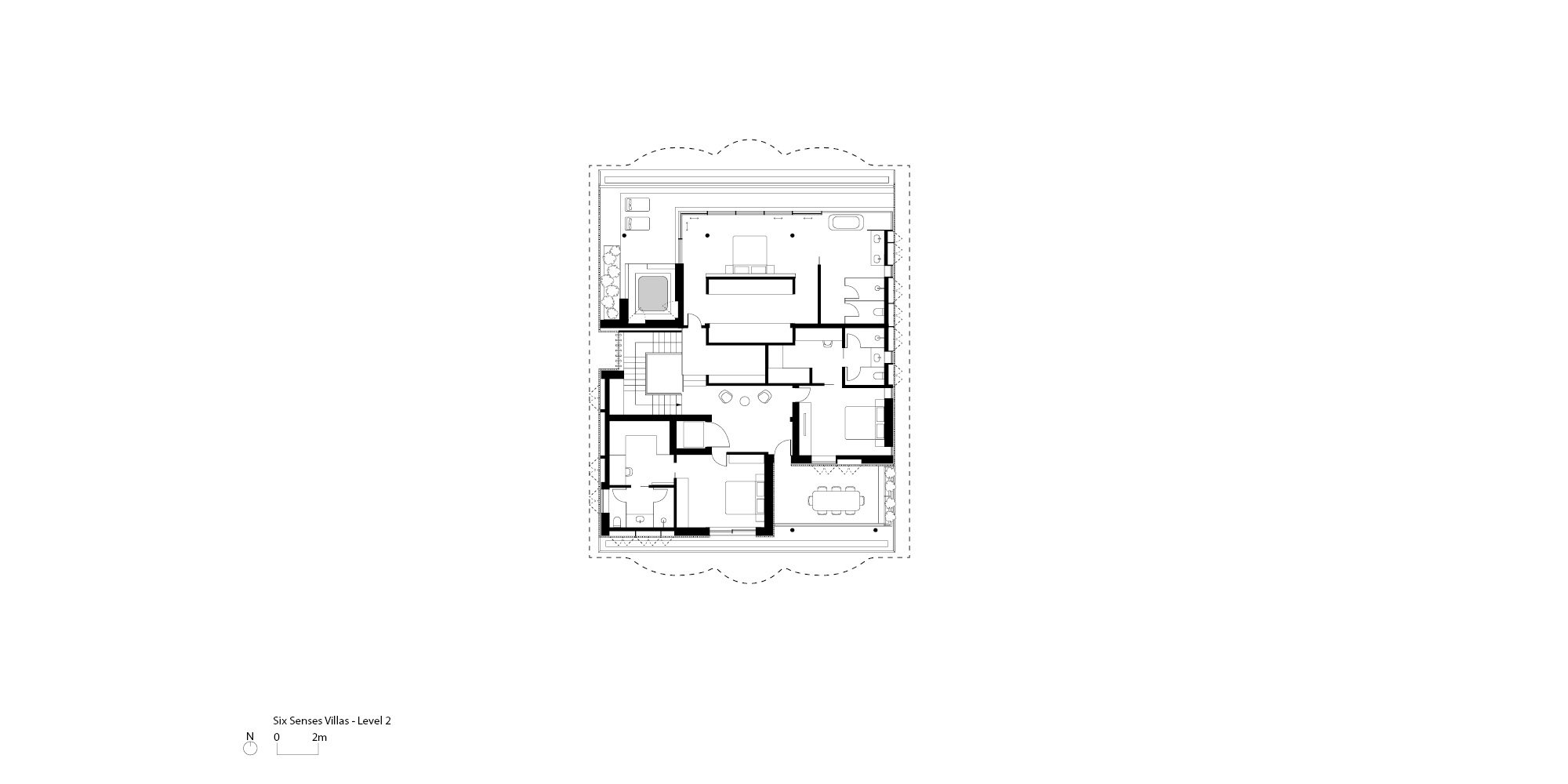
Living quarters are raised up off the ground to enhance views of the surroundings, improve natural ventilation through the home, and create space for parking and MEP services below. The first level of the villas contains state-of-the-art dining and living spaces, the grandparents’ bedroom, and a shaded courtyard where the family can gather at the heart of the home. A private infinity pool on the rear terrace appears to merge with the lagoon at the centre of the development, while the rear terraces of the large residences connect with the forest, creating a seamless transition between inside and outside. The level above provides additional bedrooms and generous shaded terraces for socialising, relaxing, or practicing yoga.
The breathable design is driven by an internal system of sliding louvres, which allows air to circulate through the villa and offers maximum flexibility for residents. Living spaces can be opened up, to create larger communal areas, or shut down for more privacy. The facade is carefully designed to balance views of the surroundings and privacy for residents. Timber screens on the first level are made from regionally sourced bamboo, with aluminium rain screens and stone cladding above. These screens provide shading and gently filter light into the living spaces, while also creating an elegant aesthetic that reflects the local culture and maintains a sense of seclusion. A large undulating aluminium roof – with a timber soffit – draws on natural forms, enhances water drainage, and features PV panels that provide energy to the home.
Residents have access to their own clubhouse, with a private health centre and large infinity pool that connects with the lagoon. The gridshell free-span timber structure creates a flexible event space that can accommodate a range of different activities.

























