View the 360 tour
Following our development of a strategic Masterplan for the Cleveland Clinic’s 168-acre campus, Foster + Partners was commissioned by the Clinic, together with Case Western Reserve University, to design a new health pavilion that looks to the future of integrated and interactive health education. The brief identified an area of our masterplan, close to the Clinic, that could be developed into a dedicated campus, combining two Schools of Medicine, a School of Dental Medicine and a School of Nursing.
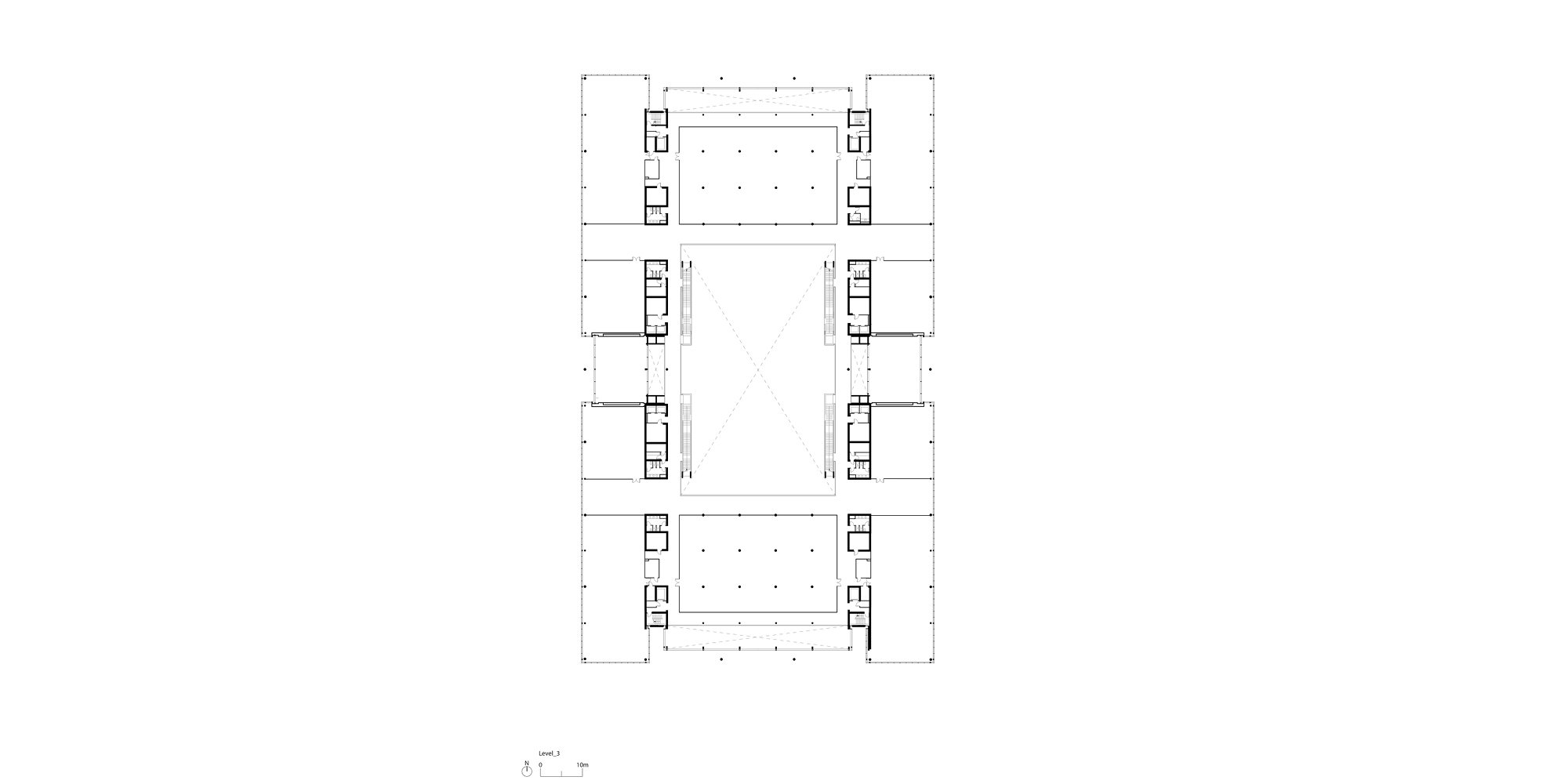
With its expansive lawns and welcoming canopy leading to a grand, naturally lit internal courtyard, the Samson Pavilion marks a significant investment in the future of health education for Case Western Reserve University and Cleveland Clinic. The design brings together the previously separate dental, nursing, and the university and Cleveland Clinic Lerner College medical education programs into a single, multidisciplinary four-story building that blends sympathetically with its neighbours. Key elements of each school are arranged around a large internal courtyard, maintaining their own identities, but with a series of layered shared spaces. Spatial efficiency was greatly increased through utilisation studies and analysis of teaching methods, while the creation of flexible spaces allows room for future growth. The different faculties share teaching spaces, admin areas, lecture halls, recreational areas and technical teaching facilities as well as improved building services, storage and amenities such as cafeterias and personnel support.
The 80-foot-high central Delos M. Cosgrove courtyard is the social heart of the pavilion. Generously top-lit through linear skylights and furnished with oak tables, benches and planters designed by the practice, the space is meant for informal work meetings, chance encounters, and sharing a coffee from the nearby cafe. Ficus Nitida trees create an avenue between the east and west entrances introducing a sense of scale and calm greenery to the space. The furniture and trees can be easily reconfigured, as can the south and north winter gardens, for a wide range of events.
Foster + Partners delivered the structural and environmental design for the LEED Gold-rated project. Detailed daylight and climate analysis informed the design of the roof of the central courtyard. The heavy snowfalls in the region drove the structural design, where the roof trusses are pitched to allow the snow to naturally slide off the glass and onto the solid infill roof around the courtyard, ultimately melting into the channels along each side of the roof. Shading is provided by the truss cladding allowing more light around the perimeter circulation spaces.
The practice has also designed bespoke furniture pieces for the library, meeting rooms, deans’ suites and other working spaces in collaboration with the clinic. The warm, timeless nature of the oak and leather materials aid acoustics and create a sense of wellbeing. The new pavilion allows students from the dental, nursing and medical schools to learn together, inspire each other, and collaborate using a combination of the latest digital technology and shared social spaces, reinforcing the building’s pioneering purpose to create better healthcare for all.


































