View the 360 tour
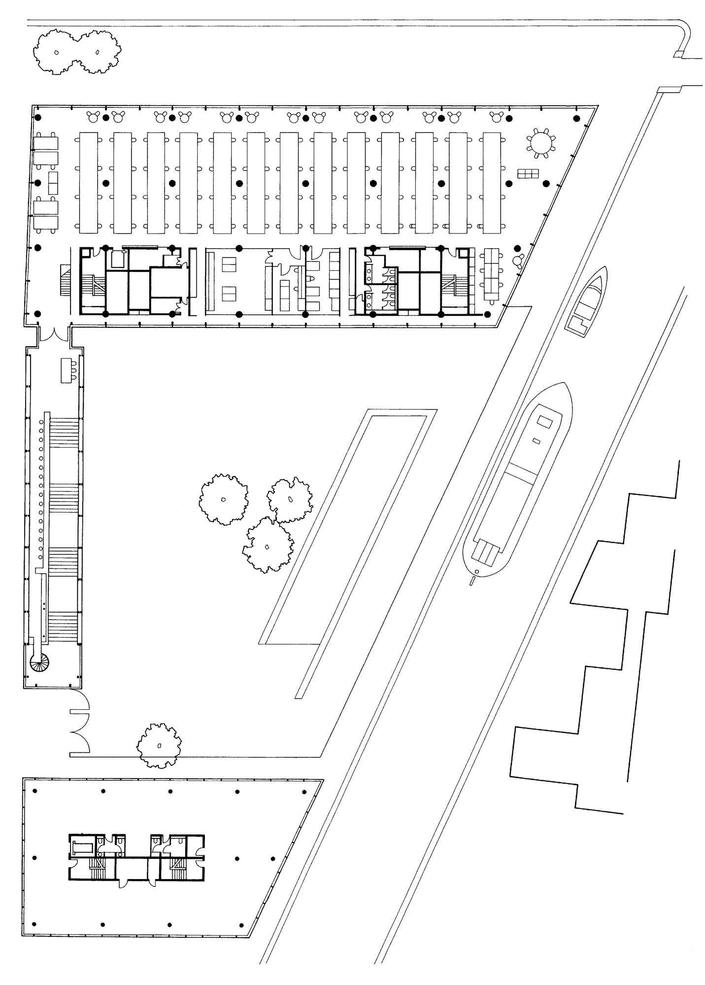
Riverside is a pioneering example of a mixed-use building - with Foster + Partners' studio occupying the lower three levels and apartments located on the upper floors - all of which share spectacular views of the river. The building's strategy for renewal involved the creation of a new network of pedestrian routes to make this stretch of the riverside accessible to the public.
Riverside is a pioneering example of a building that combines living and working in one location. There are few contemporary examples of this idea in Britain, and where they exist they break with traditional planning guidelines, which typically create separate zones for residential, commercial and industrial uses. Located on the south bank of the Thames, close to Albert Bridge, the site previously existed only as a scene of urban dereliction. The strategy for its renewal involved creating a new network of pedestrian routes and the rehabilitation of the adjacent dock. The effect has been to make this stretch of the riverside accessible to the public and to create connections to neighbouring streets, where a new café culture has evolved.
The building itself has eight storeys, with Foster + Partners' studio occupying the lower three levels and apartments located on the upper floors, all of which share spectacular views of the river. A private courtyard provides separate access and security for those who live in the building, while at the rear of the site a two-storey pavilion accommodates additional studio space and a print shop. The main studio, at first-floor level, is entered via steps through a toplit galleried space and forms a 60-metre-long, double-height volume. Along its southern edge a mezzanine contains meeting and presentation spaces together with a library and image bank, while below is a state-of-the-art model shop.
Everyone in the studio, whatever their job description, has a place at one of the long workbenches; the arrangement is very fluid with no division between design and production. Open twenty-four hours a day, seven days a week, the building is animated by its young and cosmopolitan staff (the average age is about thirty and as many languages are spoken). Most offices keep visitors at arms length. The Foster studio, by contrast, is completely open. Visitors can enjoy the bar - the social focus of the office - while meetings, whether formal or informal, occur in the midst of the creative process itself.




























