Zeche Zollverein near Essen is a redundant early-twentieth-century coal-mining complex designed on a colossal scale. Once the largest shaft system in the Ruhr area, it was decommissioned in 1986 when coal production became uneconomic. In an imaginative leap of faith, it was decided to reuse the site as a cultural centre and to transform the old powerhouse - a masterpiece of industrial archaeology - into the home of an arts centre for the promotion of contemporary design in Germany and abroad.
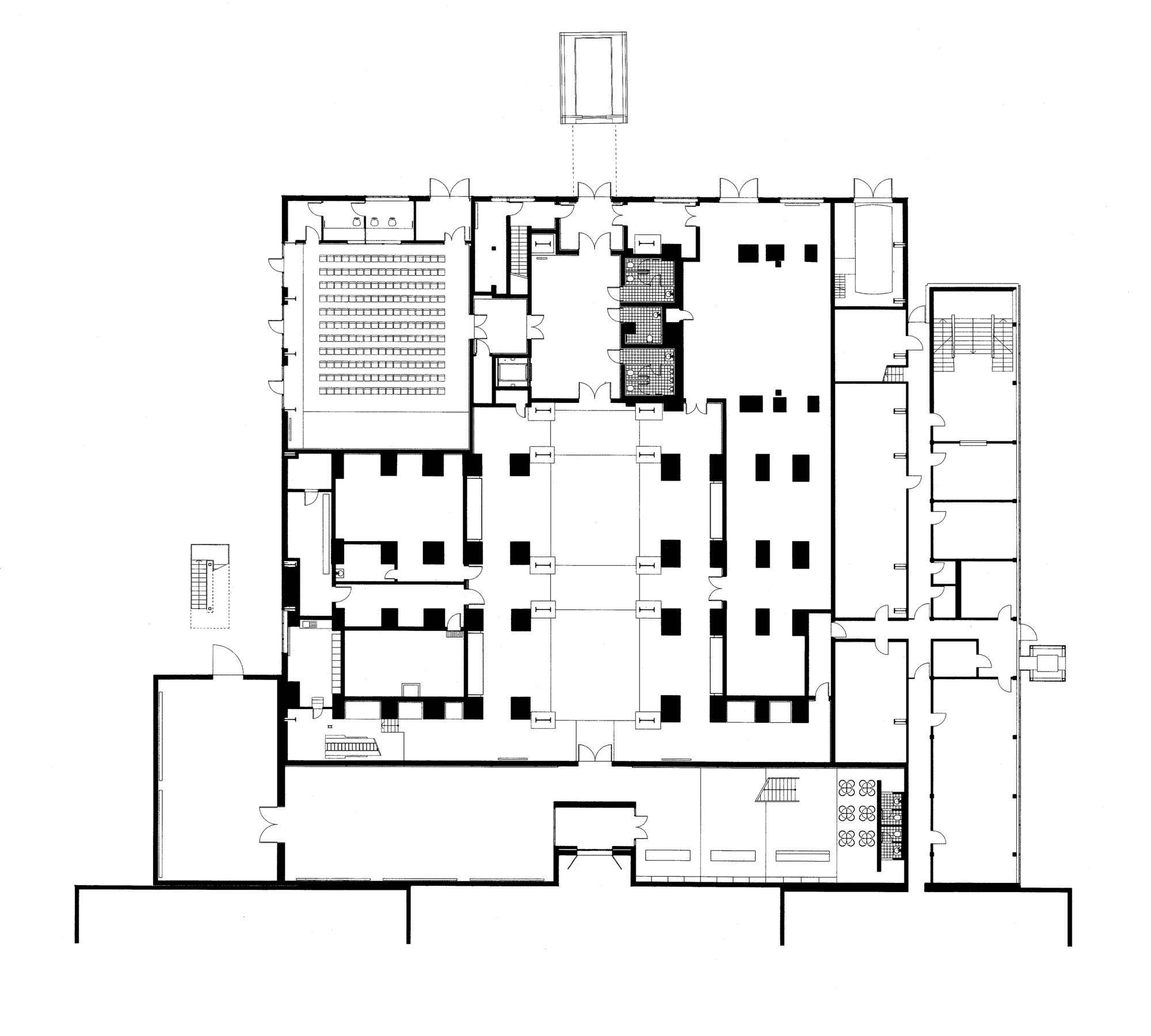
The powerhouse forms the centrepiece of an extraordinary group of buildings which share a vocabulary of red-painted exposed-steel I-beams, with an infill of industrial glazing and red brick. These magnificent structures, with their towering chimneys and vast halls, are celebrated within the complex as if cathedrals of the industrial age - none more so than the powerhouse, with its inner hall of colossal proportions, which is as impressive as any Gothic edifice. The challenge throughout this retrofit project was to adapt the heroic building, without fundamentally altering its character.
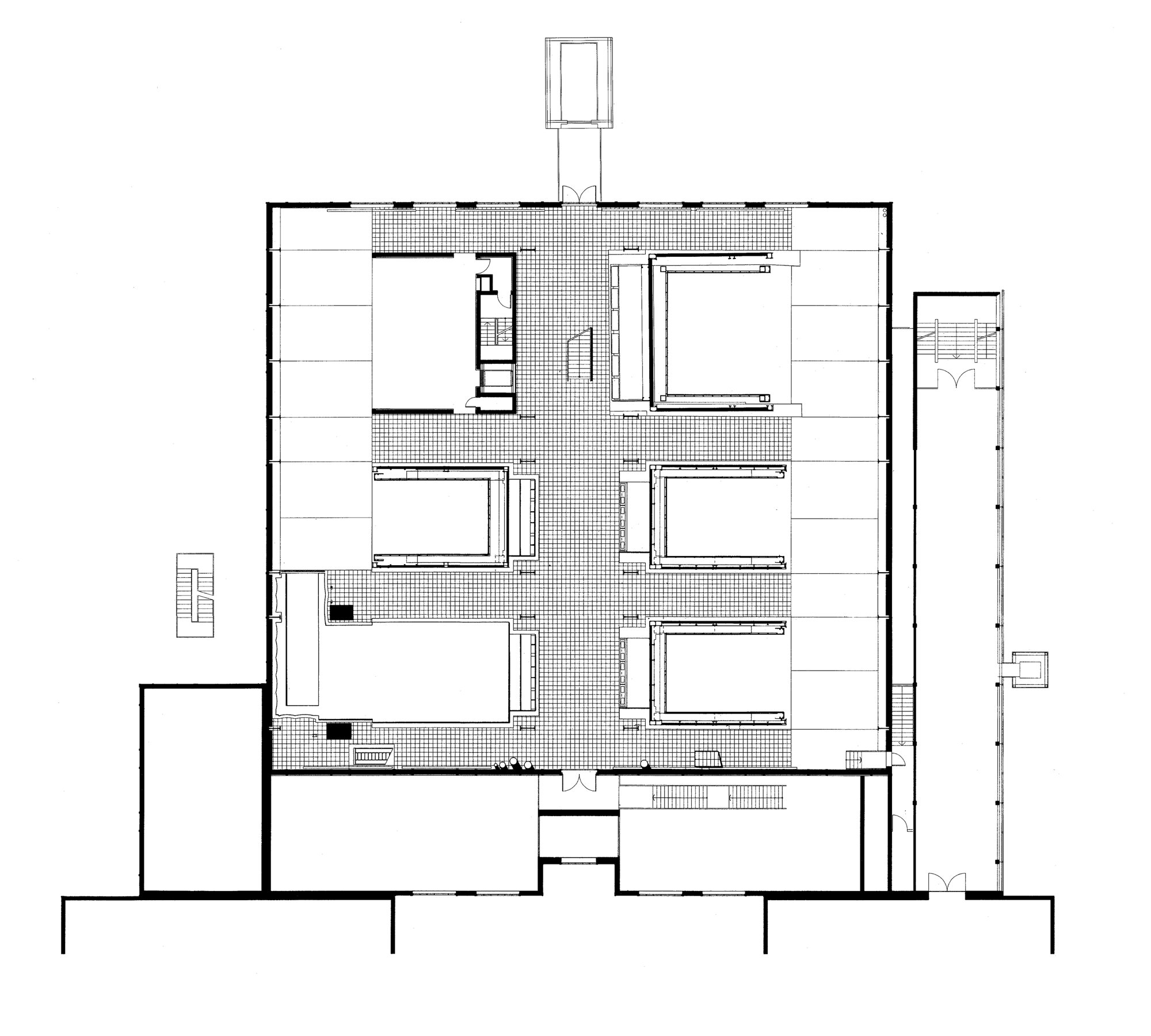
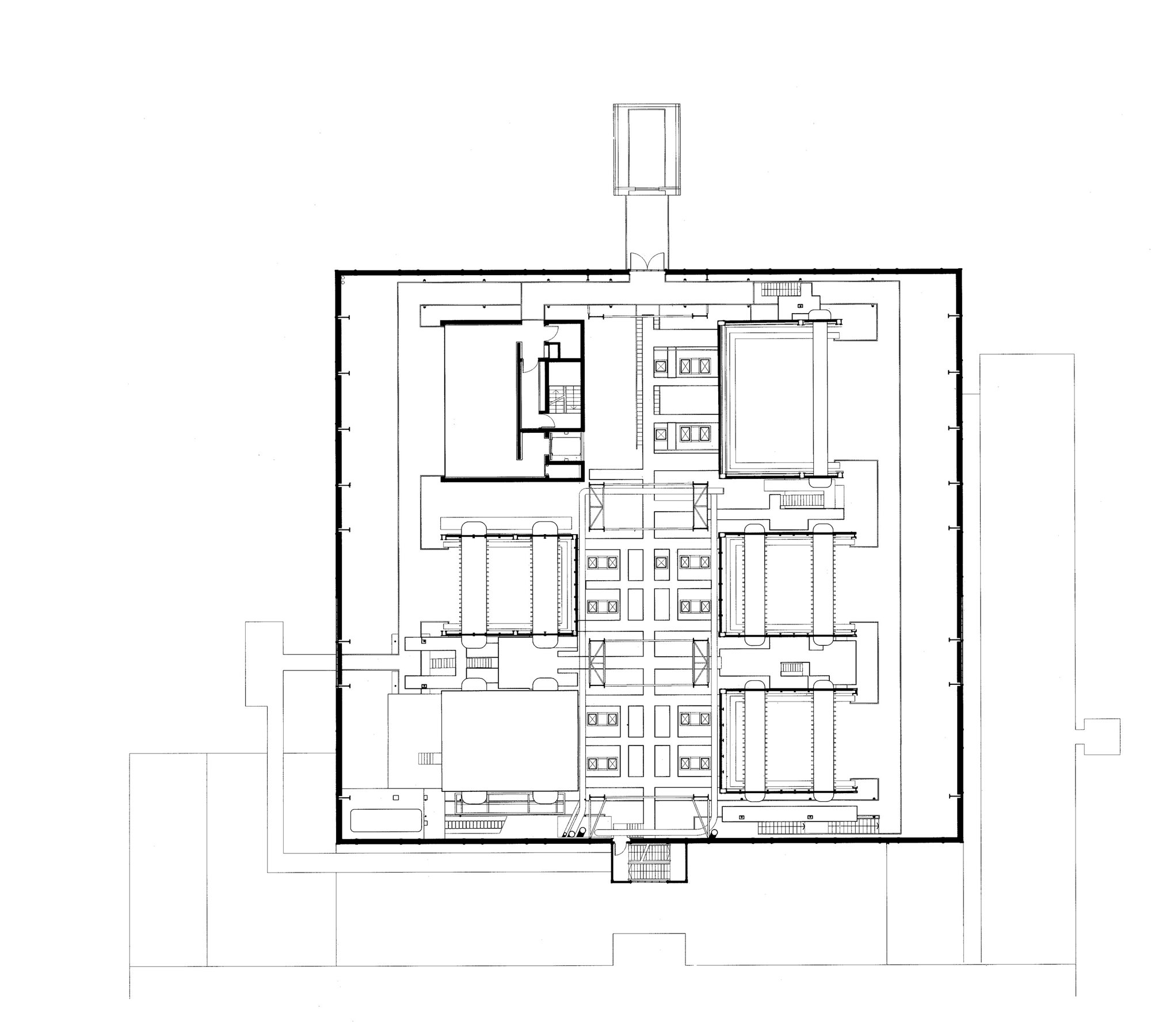
The first step was one of conservation, restoring the building’s facade and removing a number of later additions to reveal its original form. Inside, the heavy industrial feel of the building was maintained, with one of the five original boilers preserved as an example of 1930s technology. The remaining boilers were hollowed out to house independently supported galleries, which are articulated as ‘boxes within a box’, their lightness juxtaposed with the heaviness of the original fabric. A simple concrete cube contains conference rooms as well as further flexible exhibition spaces, able to be constantly updated in line with the shifting temporary and permanent collections. Visitors enter via the dramatic central hall where the rusty steel structure and exposed brick walls are constantly visible alongside the various displays - everything from cars to electrical appliances. The different exhibition areas and the interaction of old and new architectures create a varied backdrop for the location of exhibits, while the changing nature of the exhibitions themselves adds a further dynamic element to this relationship.





























