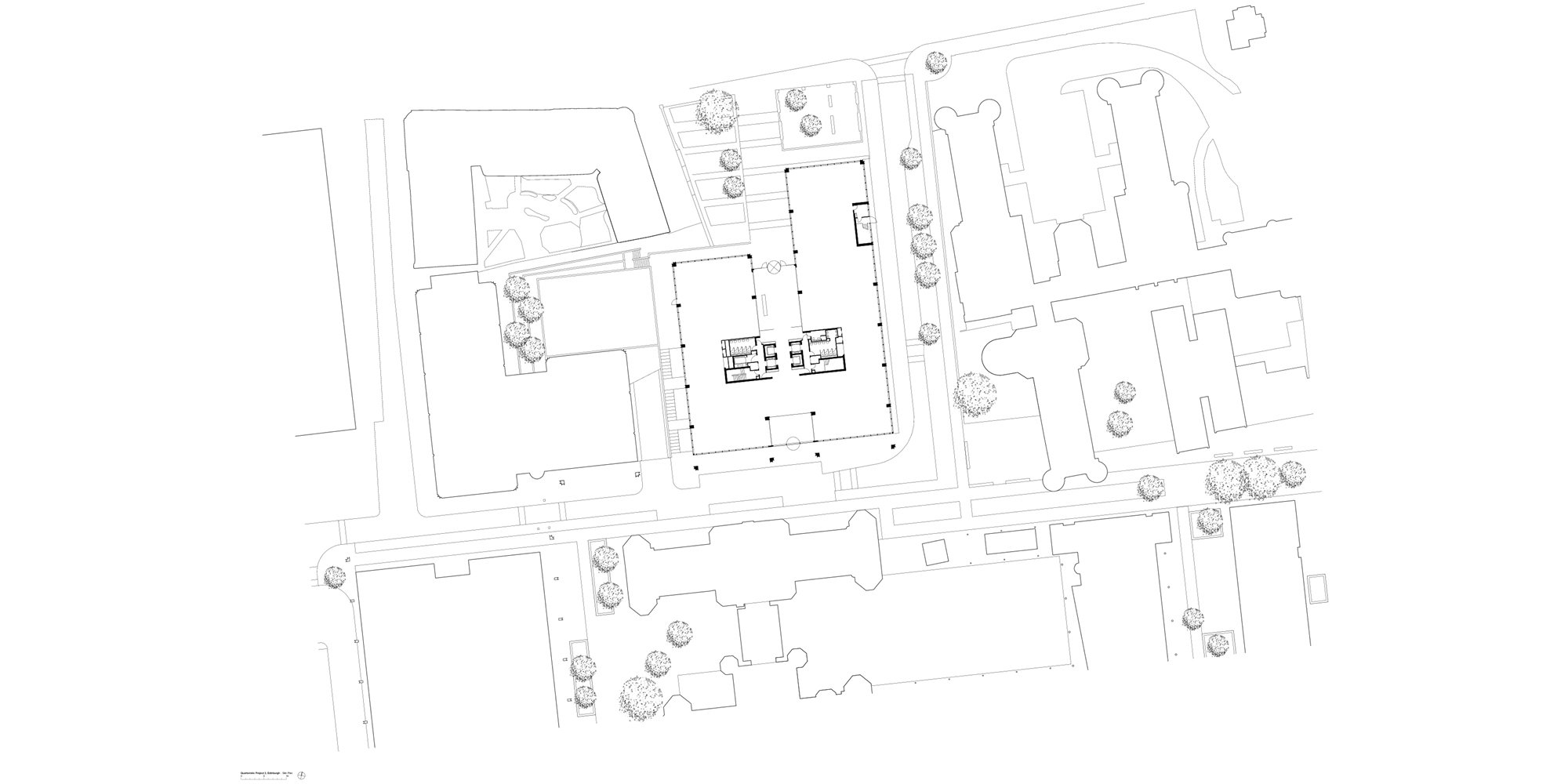
Quartermile is one of the largest and most comprehensive regeneration schemes in Scotland. Formerly the home of the historic Edinburgh Royal Infirmary, the 8-hectare site is located within a conservation area on Edinburgh’s Victorian fringes and includes nine listed buildings. It lies between the heart of the city and the parkland of the Meadows and falls within a central area of Edinburgh that was designated a World Heritage Site by UNESCO in 1995. This scheme for its renewal extends the practice’s investigations into the creation of sustainable, mixed-use urban communities, continuing themes first explored in schemes such as the King’s Cross and Duisburg Inner Harbour masterplans.
The Royal Infirmary hospital campus was originally open and accessible, but a cumulative series of additions had the effect of rendering it impenetrable, isolating it physically and visually from the surrounding city. The starting point for the Quartermile scheme, therefore, was to open the site up, creating a network of pedestrian routes and landscaped public spaces that draw the park directly into its heart, creating a strong sense of place and reinforcing pedestrian connections to the centre, allowing it to become an integral part of the city once again.
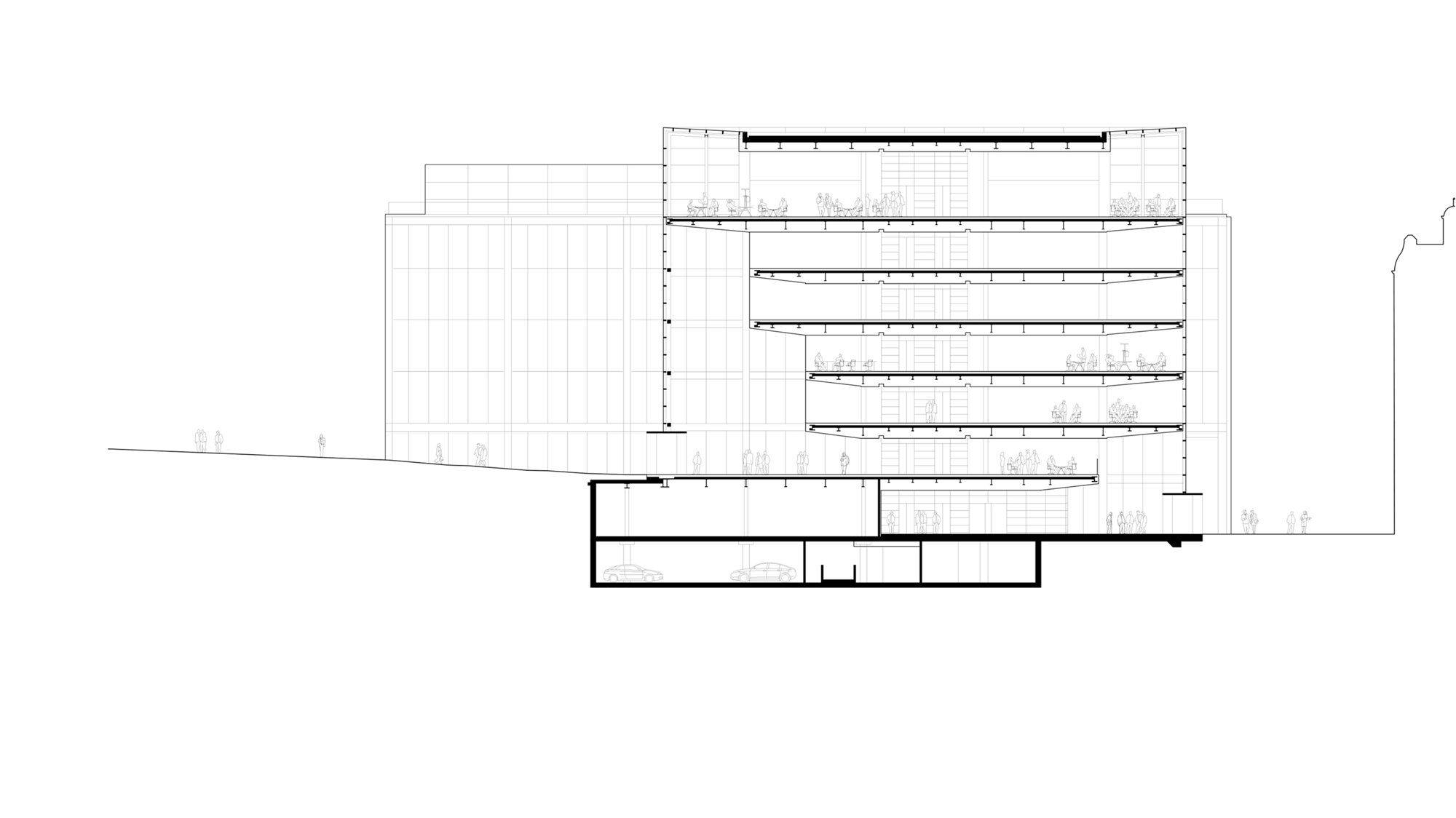
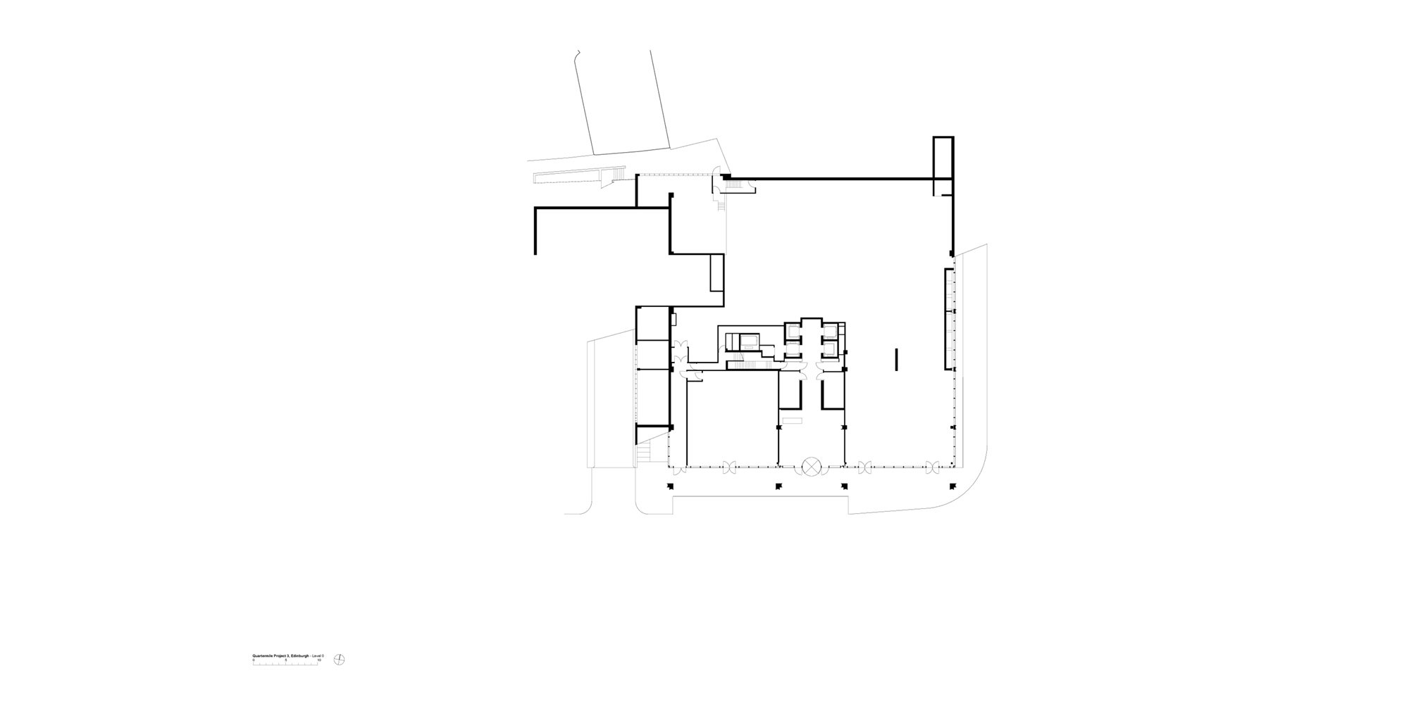
New construction is combined with the selective refurbishment of the historic buildings, with the new woven carefully into the grain of the old. The development provides housing, office space, a five-star hotel, restaurants, cafés and shops. The apartment buildings are located at the quieter edges of the site, while offices and shops are concentrated in the centre. The commercial buildings frame a new piazza, shaded on three sides by colonnades and animated by the exposed glass lifts of Quartermile Two, a seven-storey office building. The first phases of the development include seven residential buildings, a hotel, an underground car park, and Number One Quartermile, a new office building with dramatic views of Edinburgh Castle that provides the striking gateway to the development.
































