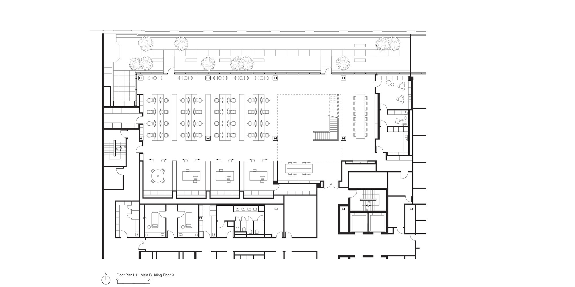
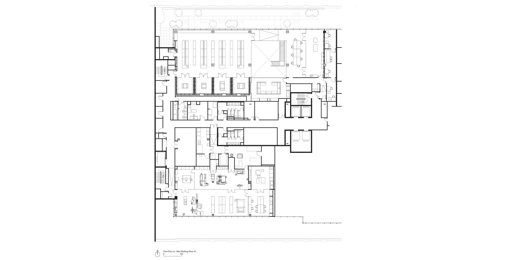
Foster + Partners in collaboration with OXMAN have designed and completed an integrated laboratory, workshop, and studio space for OXMAN. The new design and innovation lab is located in New York City within a purpose-built 36,000 square foot facility. The lab is housed across two levels with ample indoor and outdoor spaces that enhance and complement the company’s interdisciplinary ethos and commitment to designing with, by and for nature.
The lab features a state-of-the-art workshop – one of the most advanced digital fabrication facilities in New York City – including a prototyping and robotics shop that enables experimental work with large-scale collaborative robots, and a wet lab that meets Biosafety Level 2 standards including four customised data-driven grow rooms. The design and innovation laboratory includes an architectural studio, private meeting spaces, a library, an exhibition gallery, an open kitchen, a garden terrace, and a nursery.
All furniture is bespoke and has been designed by Foster + Partners Industrial Design working closely with OXMAN, including flexible workstations and integrated display systems that allow OXMAN team members to reconfigure their working environments with ease. Each of the seven-metre-long desks, which have been custom-made for the space, is crafted from a single length of solid oak, with concealed storage and an innovative support structure creating a seamless finish. Trees were hand-selected from over 80 forests, ensuring both quality and ethical sourcing.
The first level of the new studio acts as a catalyst for conversation and collaboration, with a natural material palette that reinforces a sense of wellbeing. A welcoming library space also functions as the reception area, featuring built-in shelving and a large table for private study or group discussions. An open plan workspace has soaring vaulted ceilings and is fully glazed on one side to provide spectacular views of the studio’s landscaped terrace and the city beyond. An open table provides a focal point for team meetings.
An adjacent row of individual glass offices contains sliding timber screens to conceal archived works and feature integrated mobile display units in the narrow vitrines between them. When aligned, the minimal display units illuminate objects on display and rest on casters so they can be rolled out and updated easily.
A central atrium connects the two levels, fills the workspaces with natural light, and provides a 30-foot-tall space for rigging and building large-scale projects. The centrepiece of the studio is a one-of-a-kind staircase, which is made from folded white metal and glass. All glass joints are concealed behind the balustrades to create a floating, seamless finish.
The second level is centred around design and research processes with a range of wet labs, robotic labs, and prototyping spaces. Lab furniture is modular and mobile – including trolleys, double-sided cabinets, and bins – to enable a range of configurations. These modular elements fit snugly under desks or can be moved around to facilitate different modes of working. Designed for the project, customisable ‘supercharger totems’ feature data ports, different power voltages and vacuums, allowing employees to work anywhere within the space. Facing onto the main lab, four glass-fronted and data powered grow rooms known as ‘capsules’ are climatically controlled to optimise growth – a space where biology and technology, where nature and culture come together.
A private conference room on the second level features a modular oak seating system that is readily reconfigured for meetings and video conferences.





















