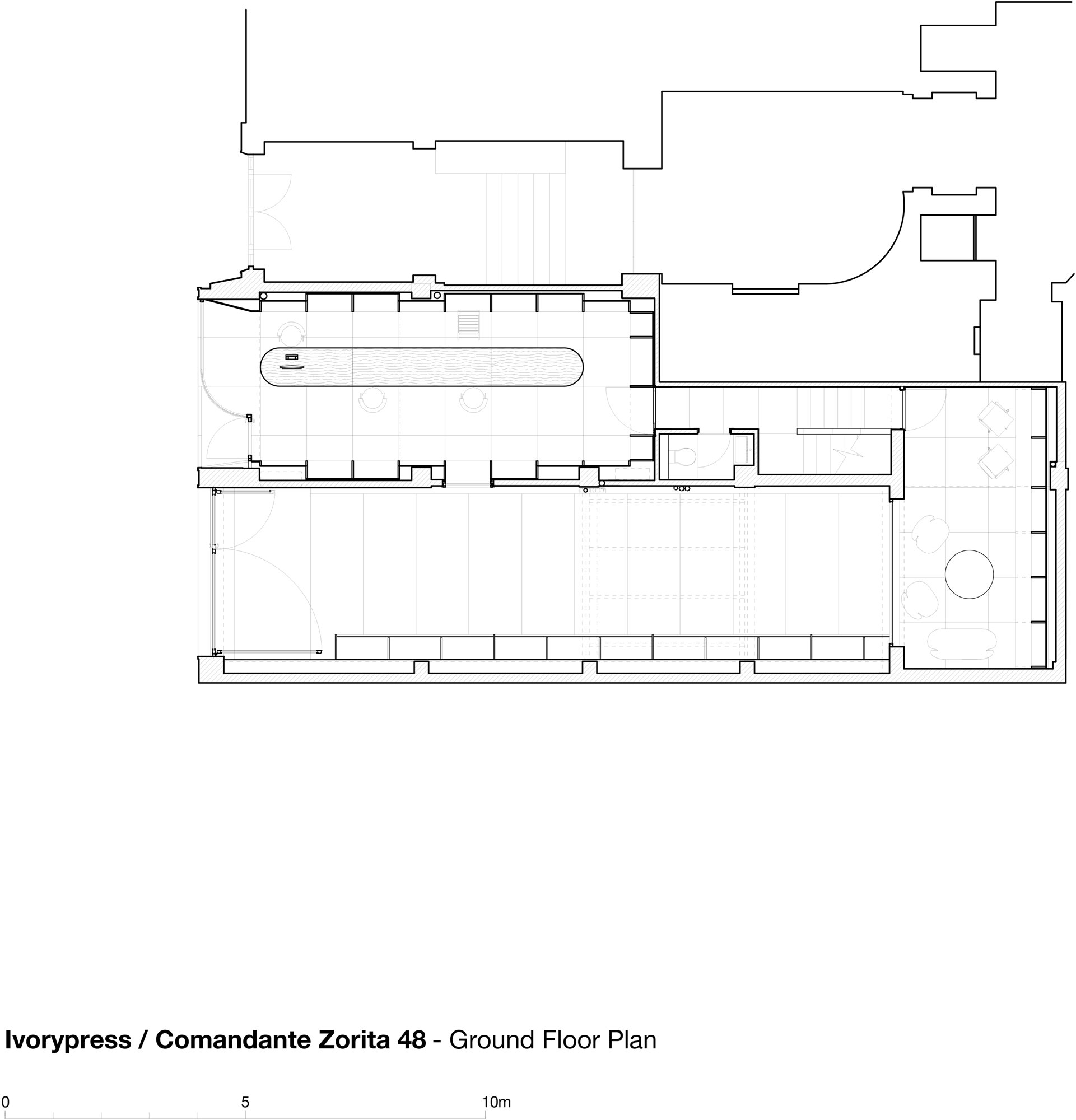
Bringing together the different strands of a multi-disciplinary cultural organisation, Ivorypress Art + Books was conceived as both a base for the company’s publishing and commissioning activities, and a crucible for the exchange of ideas, capable of supporting a varied programme of exhibitions and symposia. The project involved the adaptive reuse of two light industrial spaces and an underground garage in central Madrid to create flexible exhibition venues and a specialist bookshop.
Glazed entrances on Calle del Comandante Zorita articulate the differing nature of the spaces within. The curve of a bay window guides visitors into the bookshop, while a 4-metre high door introduces the scale of the gallery space below. The car ramp into the garage has been replaced by shallow stairs, lined with display cabinets for limited editions and rare photography, art and architecture titles. Differing in scale, but sharing state-of-the-art lighting and temperature controls, the galleries show works from the permanent collection alongside temporary exhibitions. Daylight filters down through skylights and two light wells, which define sculpture courts where curators can highlight individual pieces. The exposed concrete structure is complemented by a hard-wearing resin floor, which reflects the industrial legacy of the space. An annexe, with a similarly industrial aesthetic, provides a flexible venue for smaller-scale exhibitions.
The palette of materials in the bookshop combines timber slatted ceilings and Sevilla stone floors to create a sense of intimacy and warmth. Everything, from the bespoke cabinetry with integrated LED lighting to the long table that provides an informal display area and a place to sit and browse the collection was designed in exacting detail. A stair with a curving stone balustrade leads from the shop to a flexible office and meeting space located in the heart of the building, looking down on to the ramp. One side of this space is fully glazed, helping to articulate the connection between the gallery, bookshop and commissioning process.































