The Ilham Tower development brings together a variety of spaces for living and working in the heart of Kuala Lumpur, all within the compact footprint of a 58-storey, 275-metre-high tower – when complete, it will be one of the tallest mixed-use developments in the city. The challenge of designing such a significant new high-rise scheme was to relate to the large, urban scale, as well as in detail – close-up, the façade is rich and finely tuned to shade the interiors and to provide high-quality living spaces. The tower’s geometry is driven by the need for flexible, column-free spaces to accommodate its mixture of functions. Its form is equally shaped by the climate and urban context – the diamond-shaped plan increases the living spaces with views of key city landmarks and the facades tilt away from the morning and evening sun to reduce solar gain.
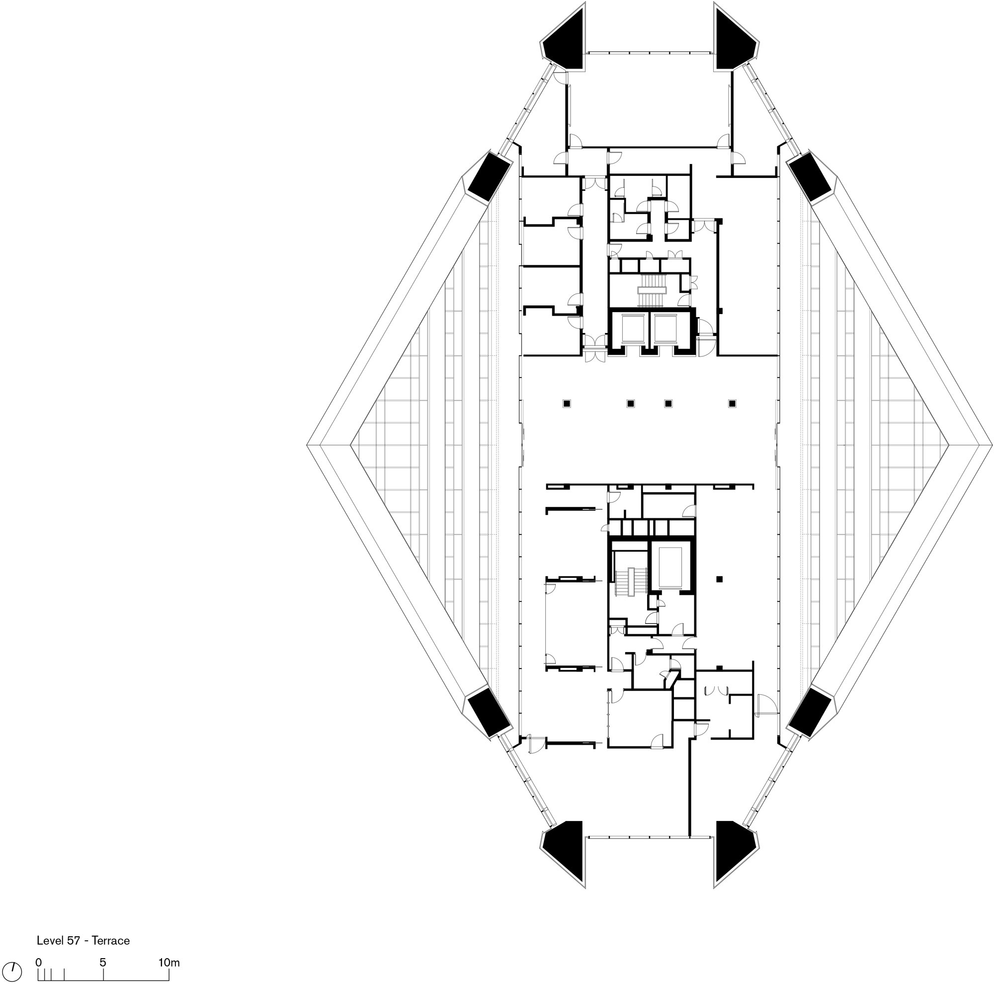
Extending the public realm, the building is set back from the perimeter of the site and poised on a slender base to create a generous, tree-lined plaza that reaches into the atrium. The glazed facades are pulled back to shade the entrances and create an impressive arrival sequence. The tower also features huge, open sky gardens, which are up to 40 metres in height and have uninterrupted city views, made possible by the tower’s innovative, self-bracing diagrid structure. Office floors are located in the lower portion of the tower, centred on a dramatic three-storey atrium, and serviced apartments are above – at ground level, the two functions have individual entrance lobbies on either side of the building. At the very top of the tower are penthouses, oriented to face spectacular views of KL city centre.
The stainless steel-clad structure, the geometry of the triangulated glass panels and the shading systems are all integrated to create a powerful, unified form. Following the profile of the structure, shading is provided by diagonal brise-soleil across each façade, oriented in response to the sun’s path to protect the interiors from solar heat gain, and glare is reduced by an opaque frit on the high-performance glazing. The structural solution also minimises the material required for construction and therefore the building’s embedded energy, contributing to the project’s target BCA Green Mark Gold Plus rating.






































