View the 360 tour
ICÔNE is a 18,800 square-metre office building in Belval, Luxembourg. Filled with light and greenery, the building encourages a spirit of co-creation and collaboration. Its layout addresses the need for flexible and safe working environments that will emerge in the future. The project also references the rich industrial heritage of Belval, revitalising the area by making a positive contribution to the site and its surroundings. The scheme is targeted to achieve a BREEAM Excellent rating.
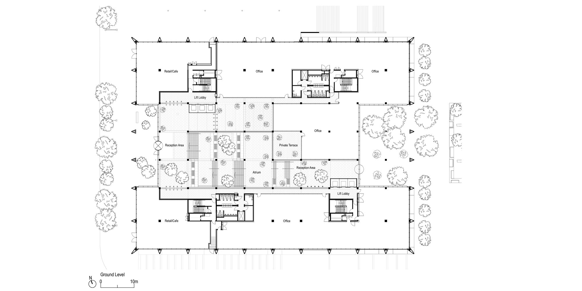
Belval is a new city quarter combining research, education, leisure and commerce. The scheme relates to the scale of neighbouring buildings and addresses the different characteristics of the surrounding streets. Its entrances are articulated differently in response to Porte de France, the main urban street to the west and the Place de l'Académie to the East. New shops, cafés and restaurants will bring life to these entrance elevations at pedestrian level.
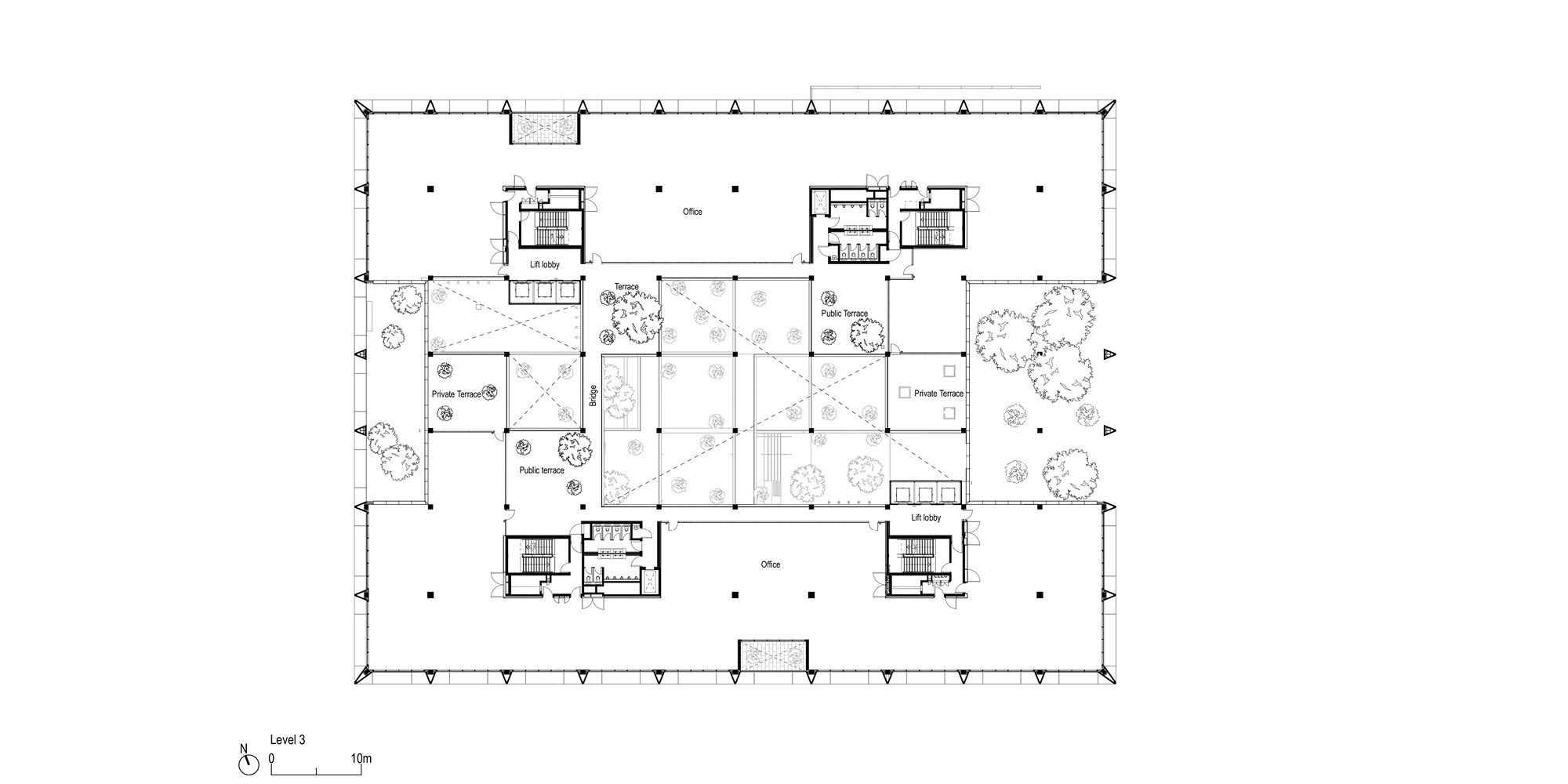
The building is arranged as two wings enclosing the central atrium, wrapped by a distinctive orthogonal façade and roof which emphasises the structural grid and gives the building appropriate to its industrial setting. The historic and symbolic Belval blast furnace forms the central focus of the dramatic vista from the atrium.
The fluidity of the internal space contrasts with the building’s formal exterior. The atrium resolves the level changes between the street and the plaza through a series of stepped terraces which create a spectacular arrival sequence. The open circulation adds to the vibrancy of the internal spaces, with communal green landscaped terraces for informal meetings and break out spaces at higher levels as part of a rich and varied whole.
The façade is both structural and environmentally responsive, providing an integrated solution which allows for internal column-free office spaces as well as solar shading and maximised internal daylight. The external façade benefits from a series of external green loggias, visible from both the inside and outside of the building.


















