The 21-storey office tower for Techcombank in Ho Chi Minh City builds on the design for the company’s Headquarters in Hanoi. The tower is organised around two approaches, programmatic – accommodating different tenants and uses – and environmental – a self-shading building that works with the tropical climate. The project aspires to LEED Platinum certification.
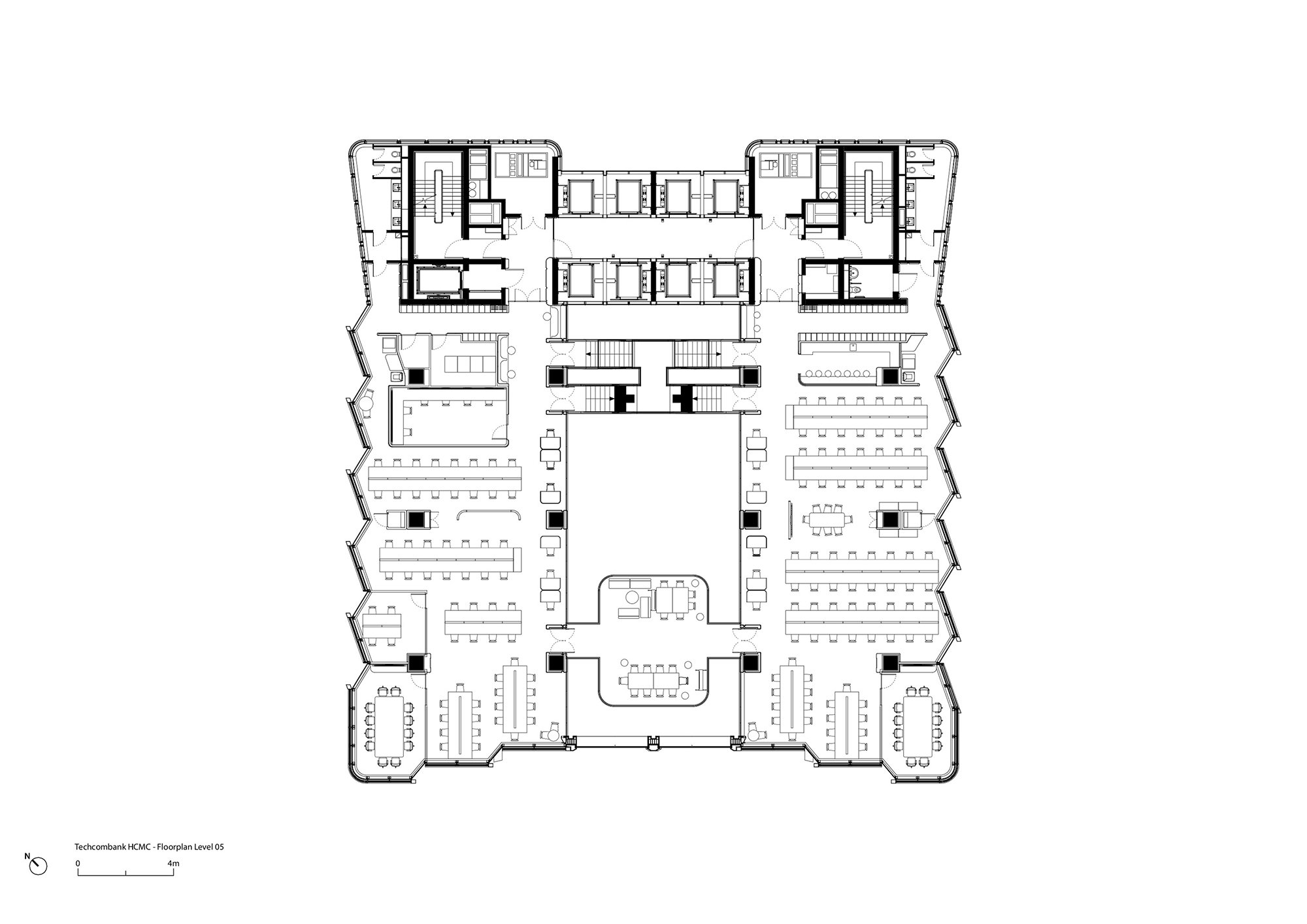
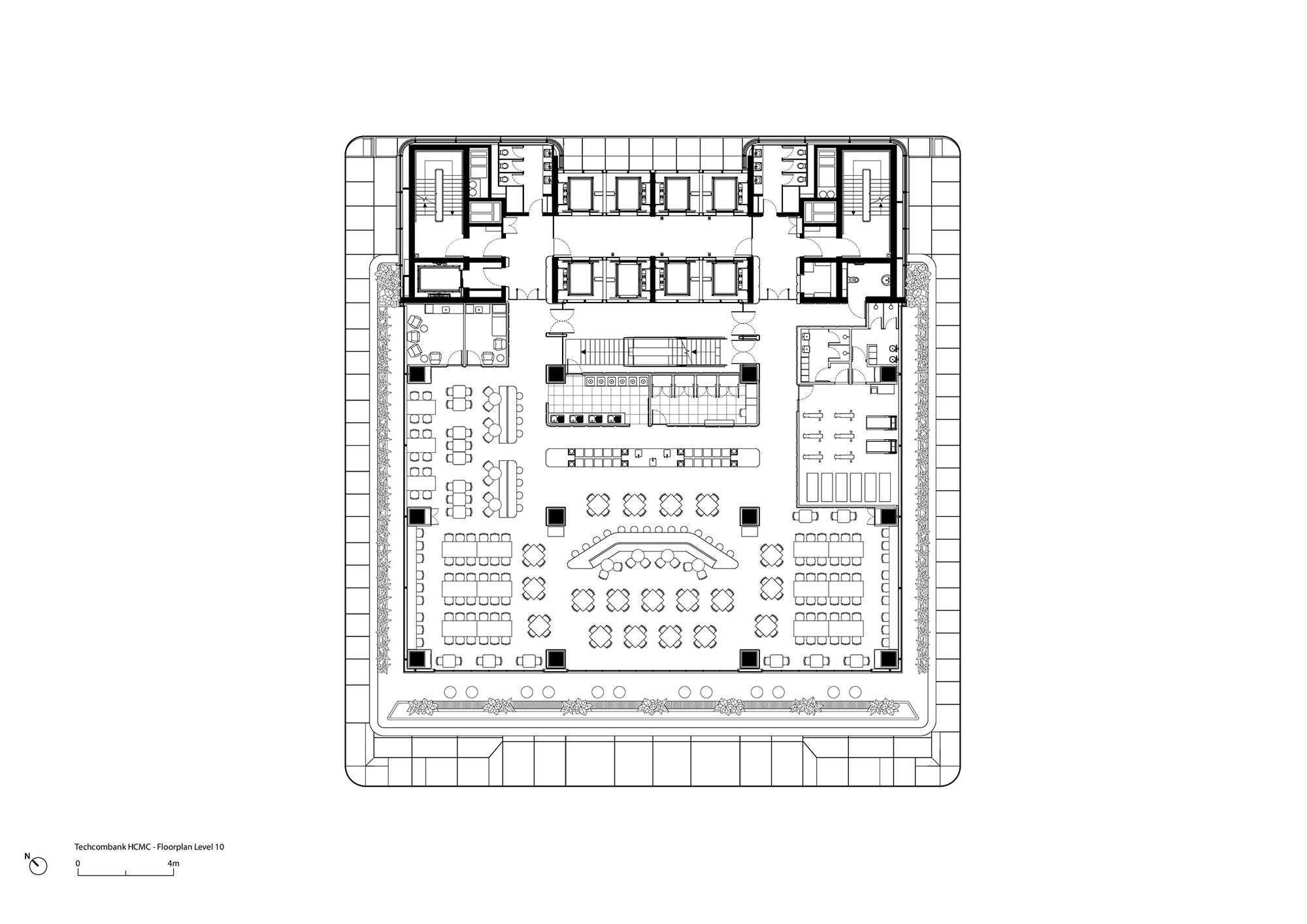
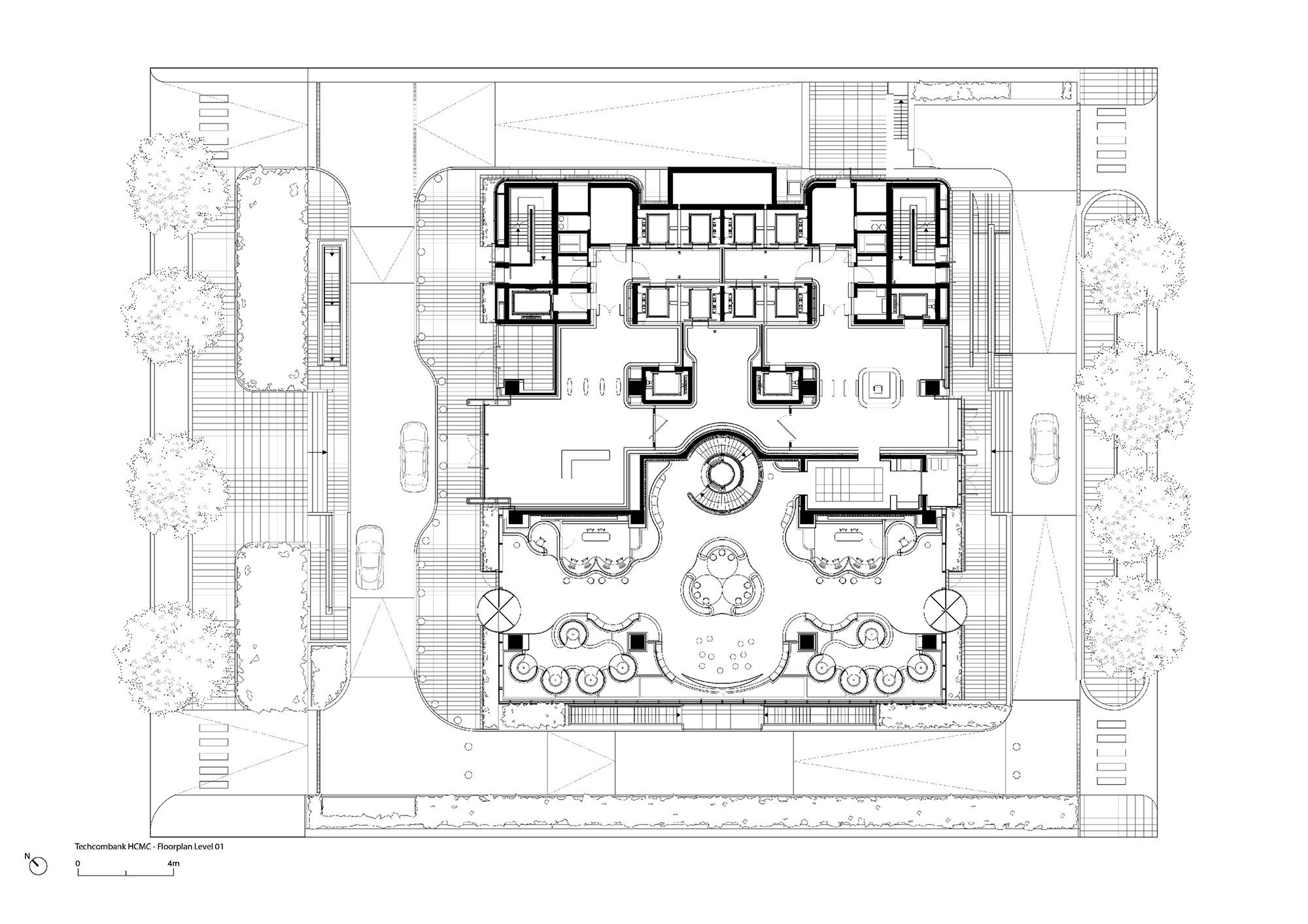
The footprint of the tower is defined by the site and the required setbacks. Located on a double fronted plot, the main entrance is off Le Duan Boulevard and the second entrance is on Nguyen Du Street. Vertically, the tower is expressed as two blocks with the core located to the rear, facing the adjacent hotel. The recessed space between the two blocks houses the amenities floor for employees.
The design creates a light-filled and welcoming environment, with three central atria that rise to different heights. The first runs from the base to level 9, while the second and third reach the full height of the tower from levels 11 and 14. These void spaces provide visual connectivity and contain meeting space ‘pods’, coming together to encourage a collaborative and inclusive workplace culture.
The edges of the floorplates follow a sawtooth pattern in response to the angle of the sun. The orientation of these edges allows the tower to effectively self-shade and creates a textural façade. One edge of the sawtooth faces the sun and is shaded using a screen, while the opposing face is clear glass as it does not receive direct sunlight, allowing a clear view out to the city and surrounding areas.































