View the 360 tour
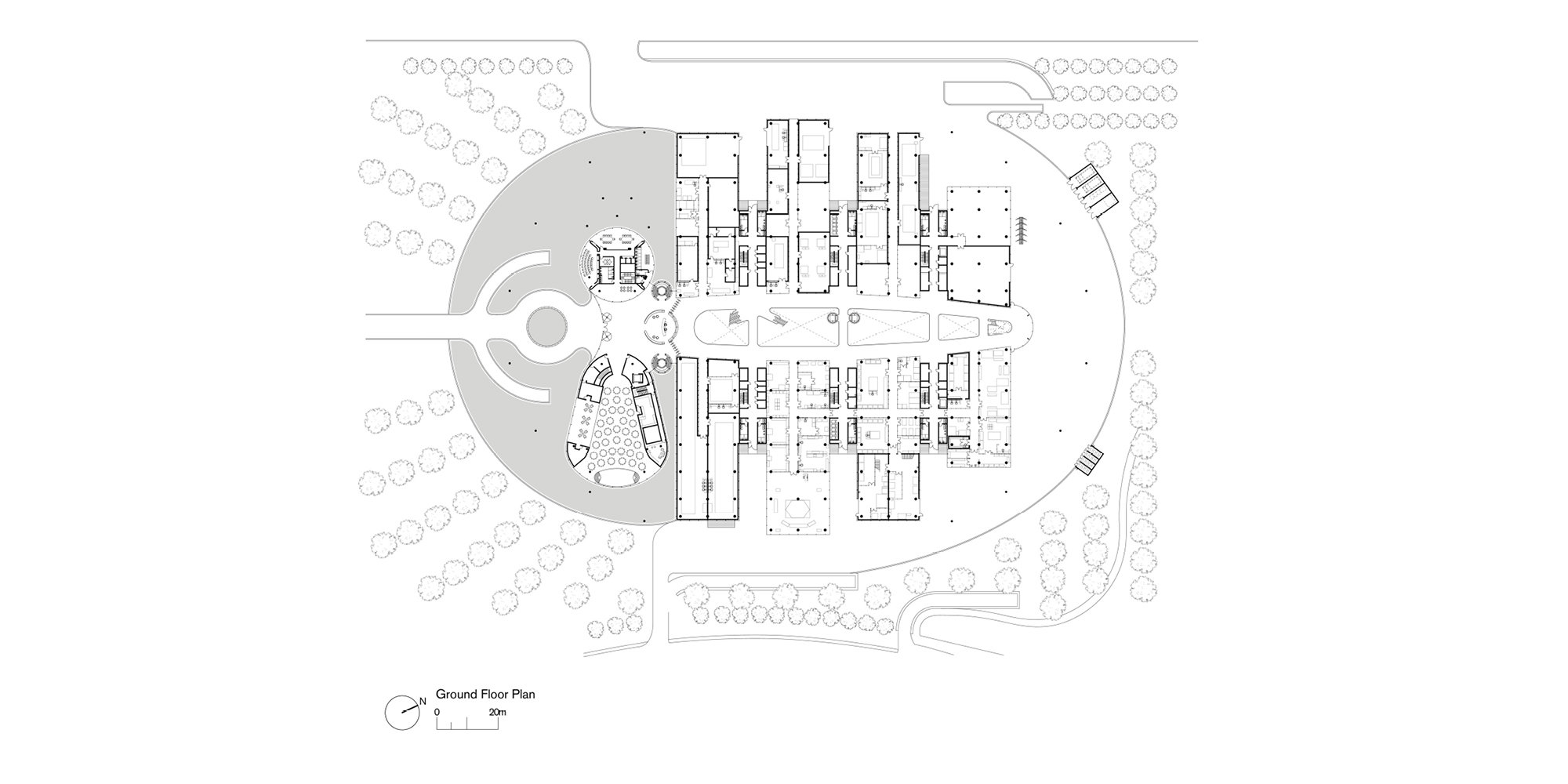
Pioneering the latest advances in tyre design, Hankook prides itself on its commitment to quality and rigorous testing. The design of its new research and development facility in the heart of Asia’s ‘silicon valley’ in Daejeon, South Korea is conceived as an expression of these values. The centrepiece of the state-of-the-art facility are the tyre testing and research laboratories, on display to invited visitors and staff to reinforce Hankook’s core identity. An integral part of Hankook’s new vision for a corporate culture and brand, the 98,000-square-metre facility aims to attract the industry’s top talent, providing an inspirational place to work, with light filled offices, advanced laboratories and dynamic social spaces to nurture a culture of openness and innovation. It lays emphasis on informal interaction within the workplace, with central meeting pods for spontaneous team meetings.
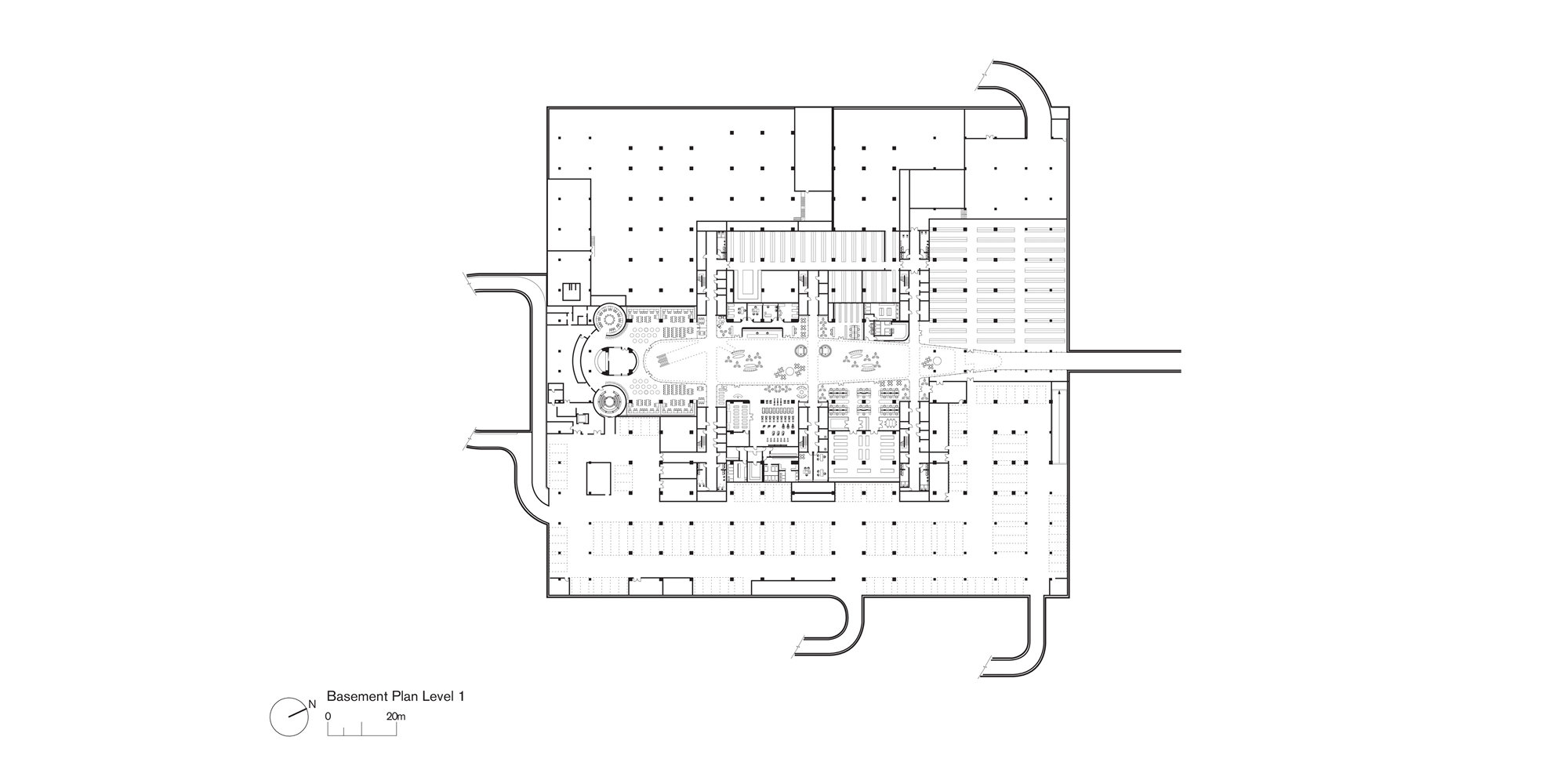
The architectural vision was to create a sleek, contemporary and mysterious building with a floating silver roof. Analysis of the existing buildings provided an insight into the testing spaces – one third of these laboratories require isolation pits, so have to be located on the ground floor, and the rest need to be located in double-height areas to accommodate equipment. The building’s section was key to resolving this complex spatial puzzle. The building is arranged as five fingers, with parallel office and industrial units. As well as creating a dynamic, integrated plan that promotes visual connections between different areas, the arrangement is highly flexible to enable future changes in use. Breaks between each finger draw daylight into the heart of the floor plate. In profile, the levels step up from four to seven storeys, in response to the height restriction imposed by an adjacent government site.
The research spaces extend along a top-lit central spine that runs from the restaurant and entrance in the south to the staff accommodation to the north. Glazed oval meeting pods are suspended above the full-height space, which acts as a light well, drawing daylight through the building. The circulation strategy creates a natural divide between public areas and more sensitive product development zones, allowing visitors to follow a tour through the building, from the spectacular lobby, which functions as an exhibition space for the latest product range, along the spine with views into the testing areas, to the parkland outside. All these different functions are unified beneath the bold gesture of a wide silver roof canopy.
































