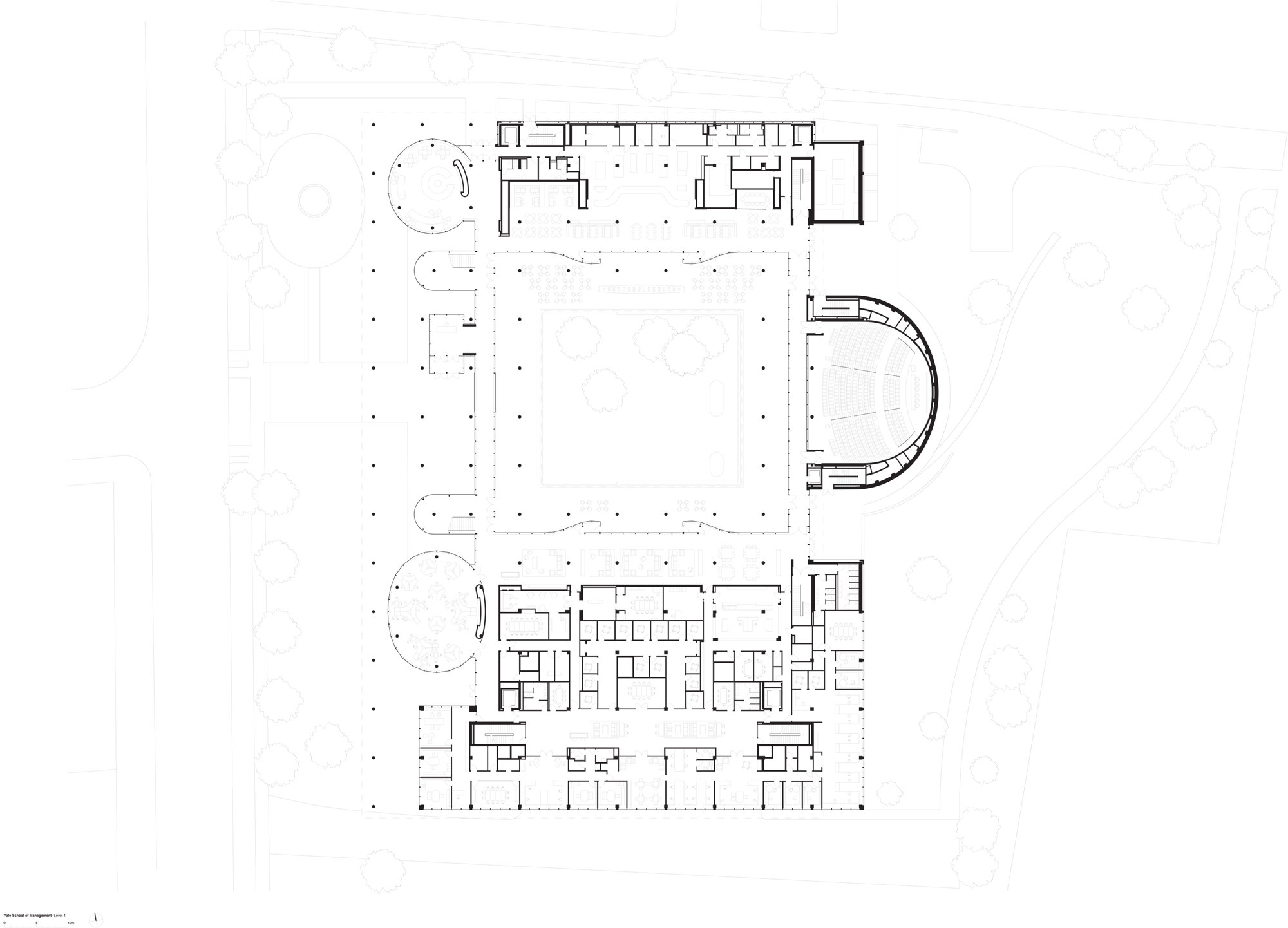
Inspired by Yale School of Management’s reinvention of business school education and pioneering integrated curriculum, the Edward P. Evans Hall combines world-class teaching facilities with inspirational social spaces. The project unites Yale’s faculty departments in a single location for the first time and brings a high level of transparency to the traditionally enclosed college courtyard, creating a green heart for the campus community, which is visible throughout the school. Embracing the wider campus, the transparent façade opens the building up to Whitney Avenue, making visible the staircases on either side of the entrance and showcasing the school’s activities.
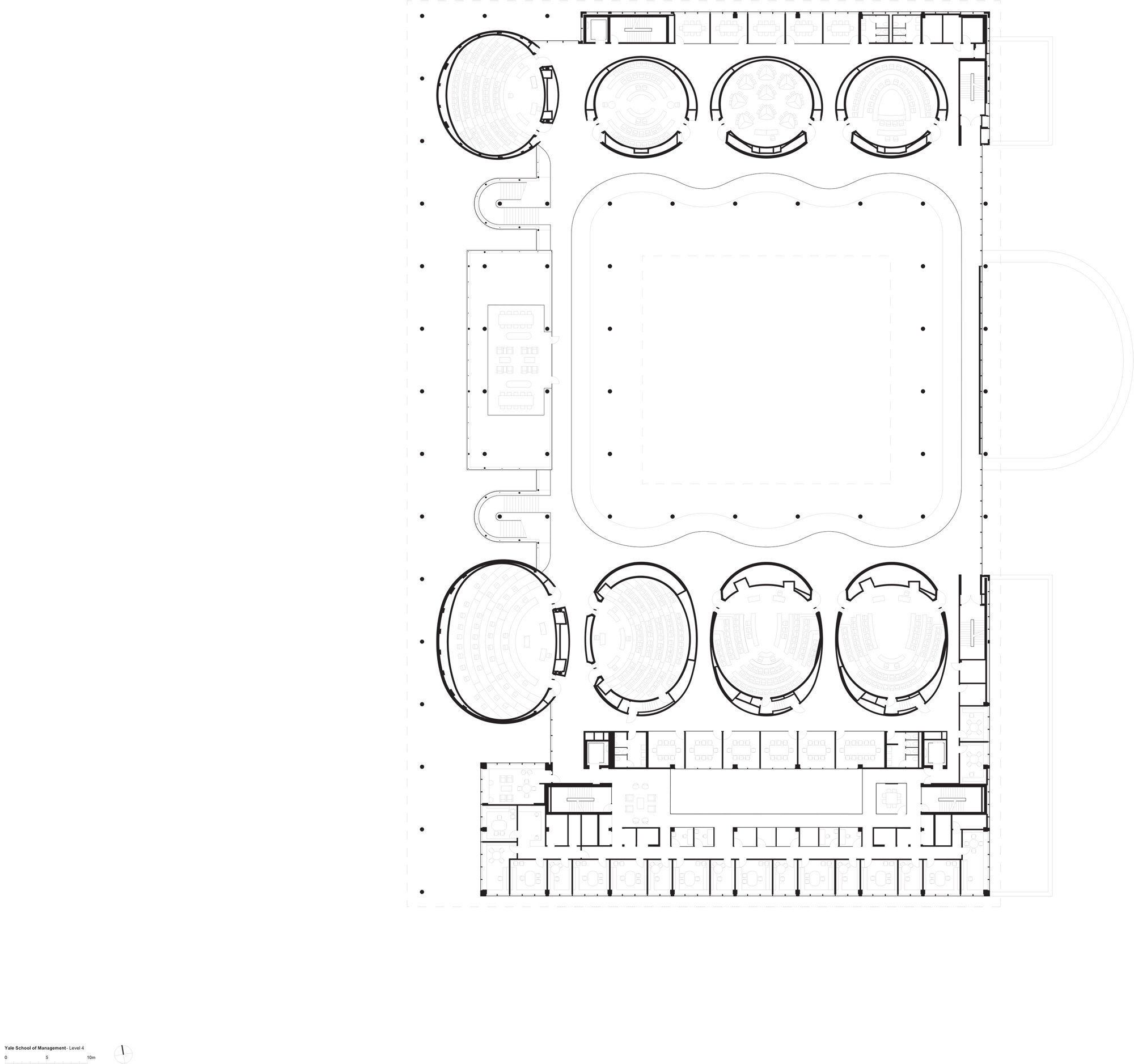
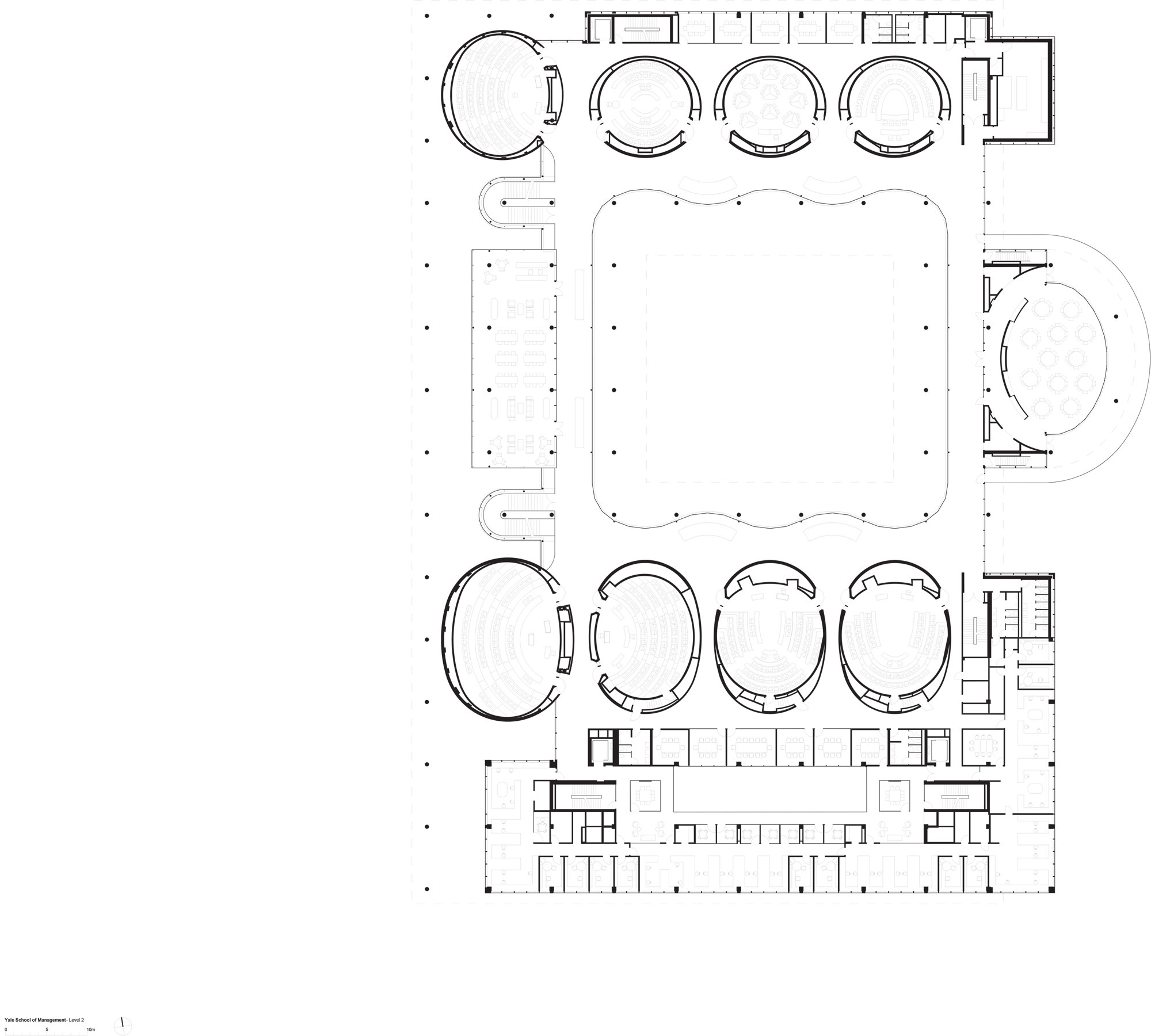
The classrooms are contained within sixteen double-height blue drums, arranged around the central courtyard. Tailored to Yale’s curriculum, the teaching spaces can support every style of learning, from team-based working to lectures, discussions ‘in the round’ and video conferencing. Guided by the principle that interaction outside of the classroom is equally important, the five-storey building incorporates a variety of social spaces. These are concentrated at ground level, where there is a coffee shop, media library and a large common room, opening out into the courtyard. On the second floor, the classrooms are connected by a wide internal circulation ‘cloister’ – the glazed façade around the courtyard follows the undulations of the blue drums to define bays where students can gather. The third floor is pulled back from the facade to form a mezzanine, opening visual connections between the different levels. The building targets LEED Gold standards of environmental performance, with chilled beams, displacement ventilation and solar responsive shading.
A flexible semi-circular events space projects from the second floor in a wide, curving terrace, facing the landscape to the east. Below this, a 350-seat auditorium provides an impressive venue for Yale’s high-profile lecture series and, unlike traditionally closed auditoria, retains a visual connection with the courtyard outside. A number of significant works of art have also been commissioned. These include murals by Sol LeWitt, which bring the circulation spaces to life in swirls of colour, and a site-specific installation by the Swiss artist Adrian Schiess, whose 90 painted panels appear to magically change colour as the viewer moves around them.
































