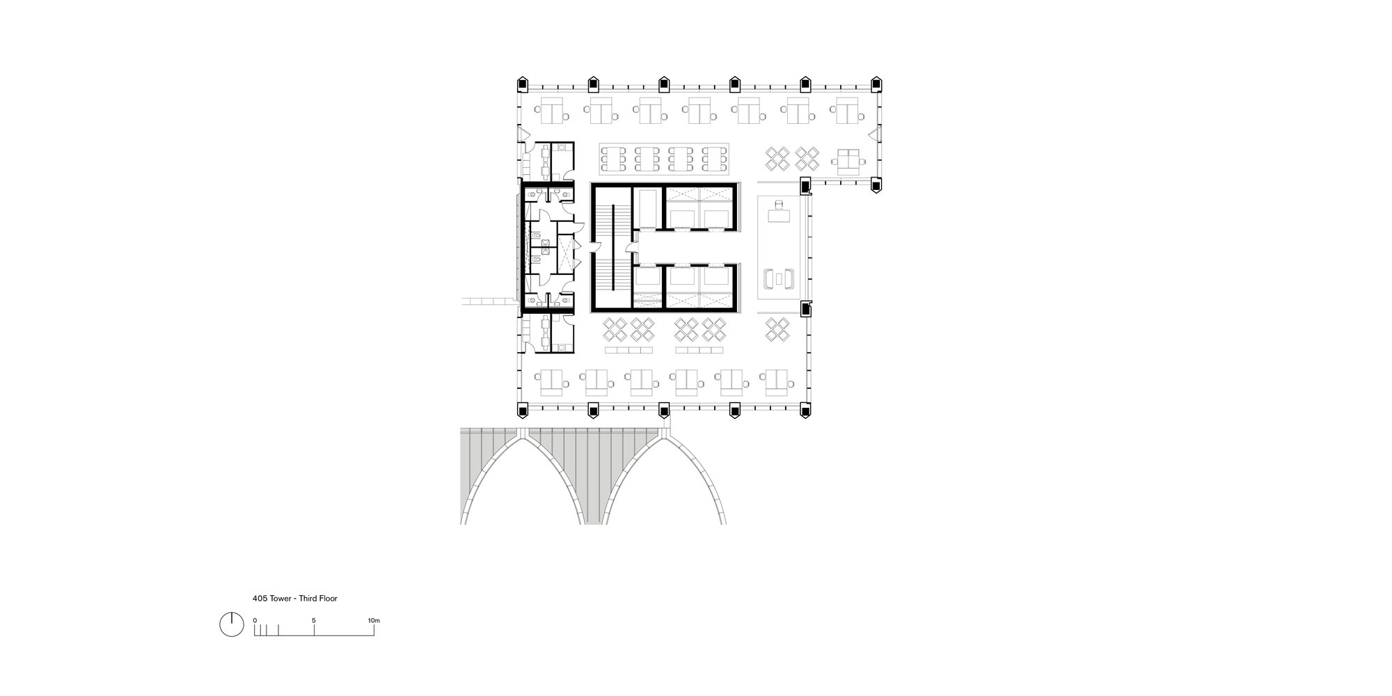
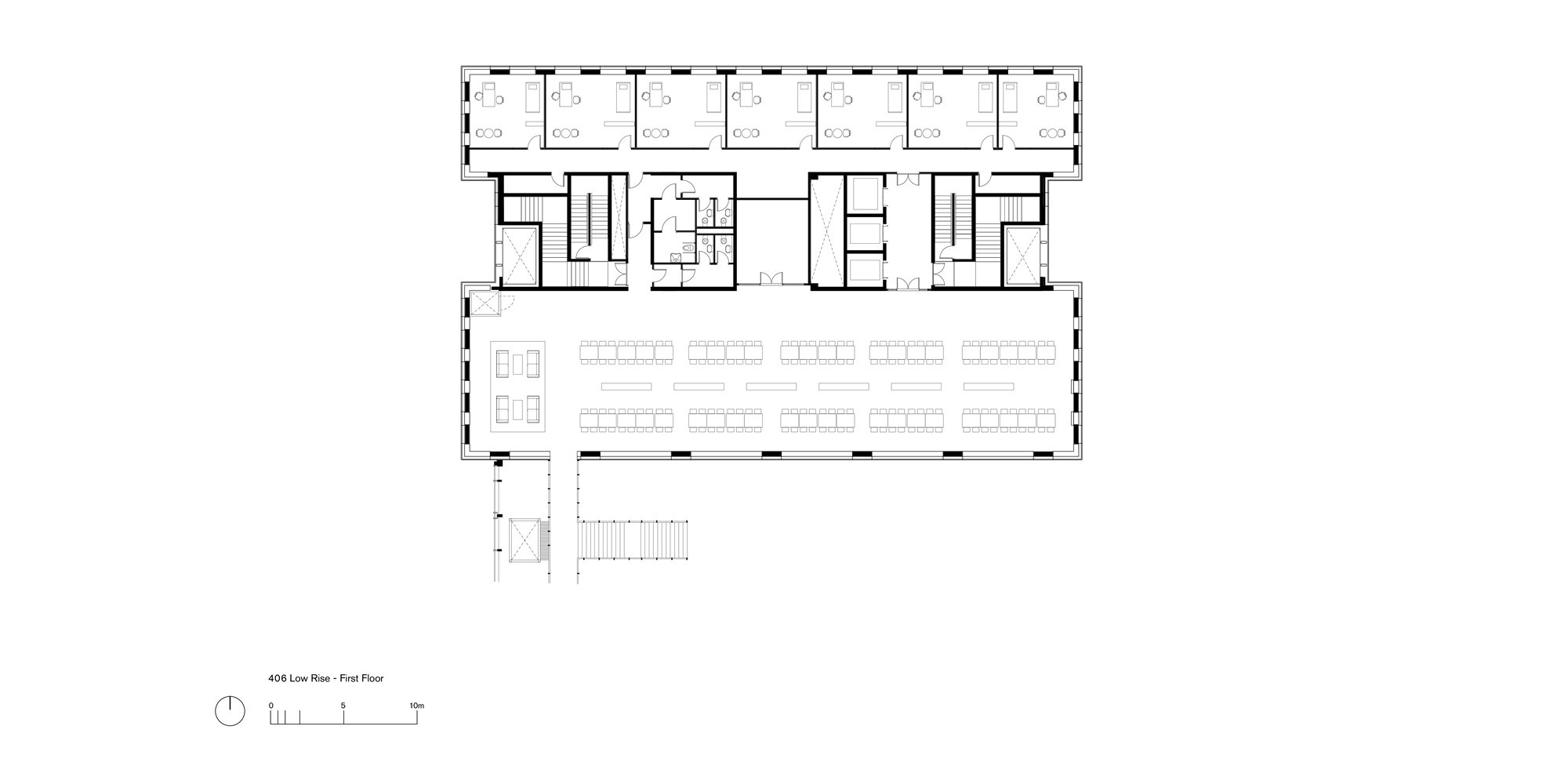
Copenhagen Towers is a major contribution to the new development area of Ørestad in Denmark. Designed to LEED Platinum standard, the buildings have been conceived as a sustainable ensemble featuring a 22-storey office tower and low-rise building joined together by an atrium. The primary focus of the project was to create a progressive, creative workplace that also embraces the strictest environmental criteria. The result is a flexible, collaborative setting that combines the latest workplace trends with an environmentally responsible approach to building.
As the ‘green’ heart of the complex, the atrium forms the main point of access to the buildings where visitors are greeted with a dense ‘forest’ of Black Olive trees. The glass-roofed structure provides a perfect microclimate for the trees offering people the experience of natural greenery in the city even during the dark Danish winter. With direct views of the treetops from various parts of the building, it provides opportunities for collaboration in natural surroundings and for different small businesses to meet and interact. Open to the city during the day, the atrium also forms a new route from the metro to the new urban centre of Ørestad. The steel structure of the atrium roof is interspersed with curved wooden profiles that accentuate the natural ambiance of the space. The atrium floor has a continuous curve of wooden benches that have also been designed by the practice specifically for the project. A green oasis insulated from the harsh environment, the atrium operates as an informal space for meetings, catching up over lunch during the day, or an exclusive dining destination in the evenings.
A significant architectural feature of the building is the use of up-cycled material in the construction process, such as the PET plastic felt ceiling which provides excellent acoustic panelling in the office spaces, while adding to the feeling of warmth in the public spaces. Working with Danish upcycling specialists Lendager Group, the innovative interiors of the building make use of a number of local materials such as reused timber wall cladding and concrete flooring from local building debris, providing warm interior finishes and furthering the sustainable credentials of the development. In response to the extreme cold weather the buildings incorporate triple glazing and extra thick thermal insulation. The complex also boasts Denmark’s first groundwater-based heating and cooling system, and along with a renewable energy system of solar panels, uses up to 45% less energy compared to a usual building of its type.





























