Foster + Partners has completed a major new Apple store close to Hangzhou’s West Lake, which combines an understanding of the local context with the philosophy of simplicity, beauty and technical innovation that characterises Apple’s products. Close collaboration between Apple and Foster + Partners’ integrated team of architects and engineers has created the ideal environment in which to view and interact with Apple’s products. Every aspect of the store has been optimised, minimised and de-cluttered. The white ceiling, which appears as an opaque surface during the day, is dramatically illuminated at night – the custom-made lighting panels emit a pure, even glow, as well as absorbing noise.
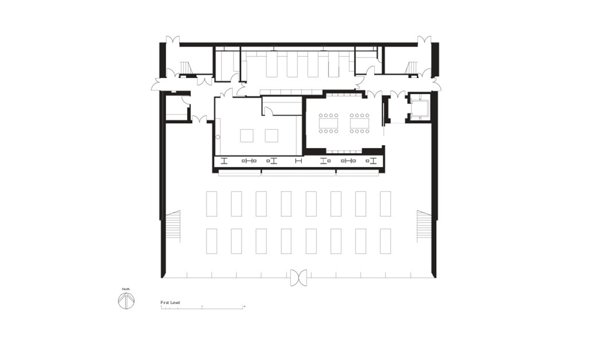
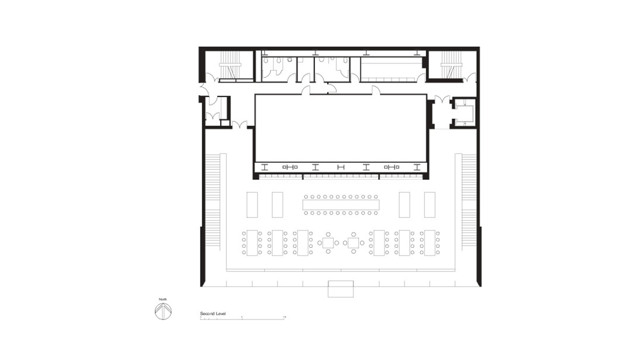
The 15-metre-high volume creates a sense of space and calm within the busy store and city. It is divided horizontally by a dramatic cantilevered floor, which extends 12 metres from the rear wall like a diving board to create a 9-metre-high piano nobile. The extremely slim floor structure is only made possible by tuned mass dampers to eliminate vibration, and it tapers from 1.2 metres to just 10 centimetres. This gives the impression of a floating stage in the centre of the space – a new living room for the city.
The miniaturisation of architectural elements demanded the highest levels of technical innovation and integration. The practice’s in-house structural and environmental engineers, architects, lighting, acoustic and fire safety teams worked closely with Apple, local partners in China and manufacturers to create a completely streamlined, even ceiling. In addition, the treads of the glass staircases on either side of the space are held in place by a discreet bolt, embedded into the glass to give the impression of floating glass steps – an appearance of effortless simplicity, which belies the complexity of the engineering solution. Apple has always been at the forefront of technological advances in the use of glass, and the façade comprises 11 large double-glazed panels, each rising 15 metres. The space is shaded by a series of blinds, which respond to the path of the sun and, when retracted, are concealed within the ceiling.





























