Apple BKC is Apple’s first flagship store in India. The store occupies a prominent corner of Jio World Drive, a new retail destination that is part of the Bandra Kurla Complex.
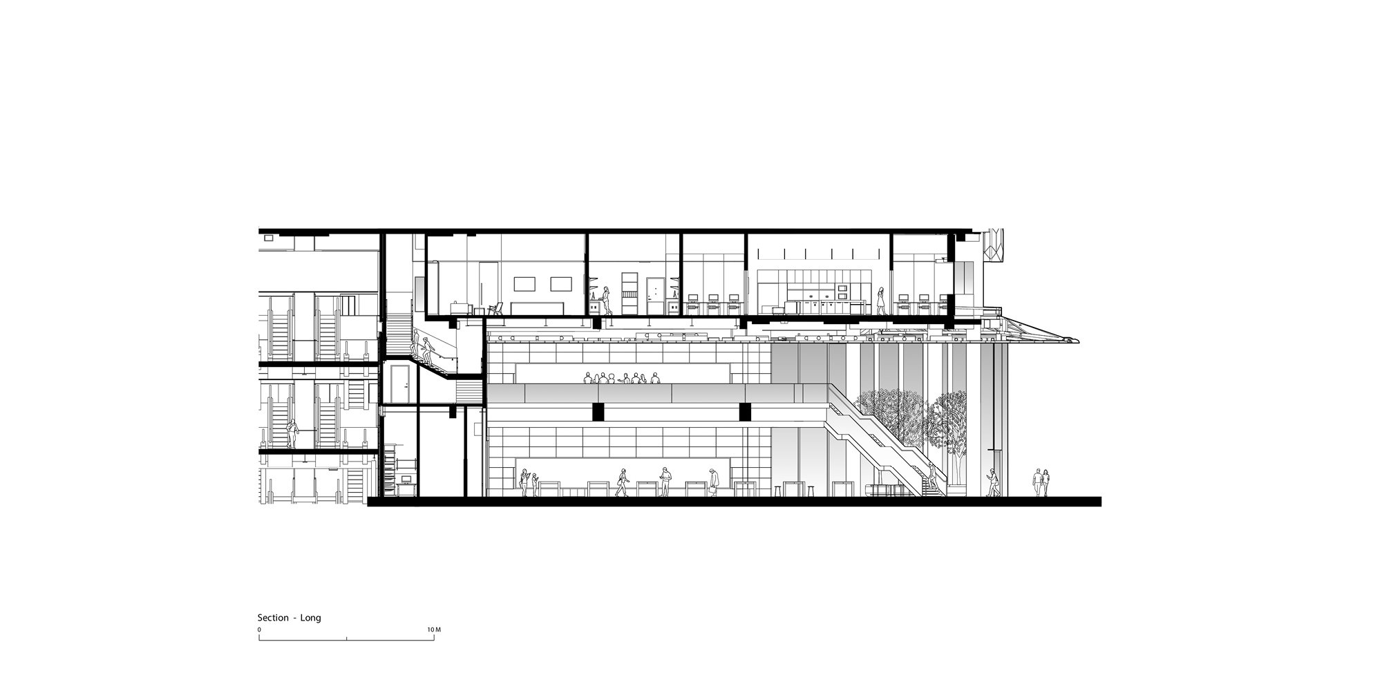
Greenery flows from the public realm into the store, blurring the boundaries between the outside and inside. The 8-meter-tall glass façade enhances this seamless connection between the generous double-height volume and the outdoor areas. A row of ficus trees, along the inside of the glazing, accentuates the store’s relationship with its landscaped surroundings.
At ground level, display tables and avenues feature Apple’s wide range of incredible products. The Forum hosts ‘Today at Apple’ and acts as a learning and event space with a large video wall. Framed by a colonnade the visitor’s eye is naturally drawn towards the striking feature wall, which is wrapped in a dazzling white acoustic fabric.
A striking staircase, made of stainless steel and two 14-meter-long glass balustrades, creates a delicate connection between the ground level and the cantilevered mezzanine. From the upper level, visitors have a spectacular view of the ground floor and the landscaped public realm.
The store is a symbiosis of Apple’s unique design approach with finely crafted elements and locally sourced materials. The sense of continuity between the interior and exterior spaces is emphasised by a hand-crafted timber ceiling that extends beyond the glass façade to the underside of the exterior canopy.
The elaborate ceiling is made up of a triangular grid of 450,000 individual timber elements, reflecting the unique geometry of the store. Each of the 1,000 ceiling tiles is assembled using 400 pieces of sustainably sourced oak timber arranged in a lattice woven pattern, inspired by the work of cane and ratan weavers found in Mumbai.
Two stone walls draw you into the into the light-filled space and provide a foil to the double-height glass façade which wraps around the building’s exterior. The stone, with is fine grain evoking the silky texture of luxurious georgette fabric, is sourced from Rajasthan.
Achieving LEED platinum certificate, the store is supplied with renewable energy from a dedicated solar array.































