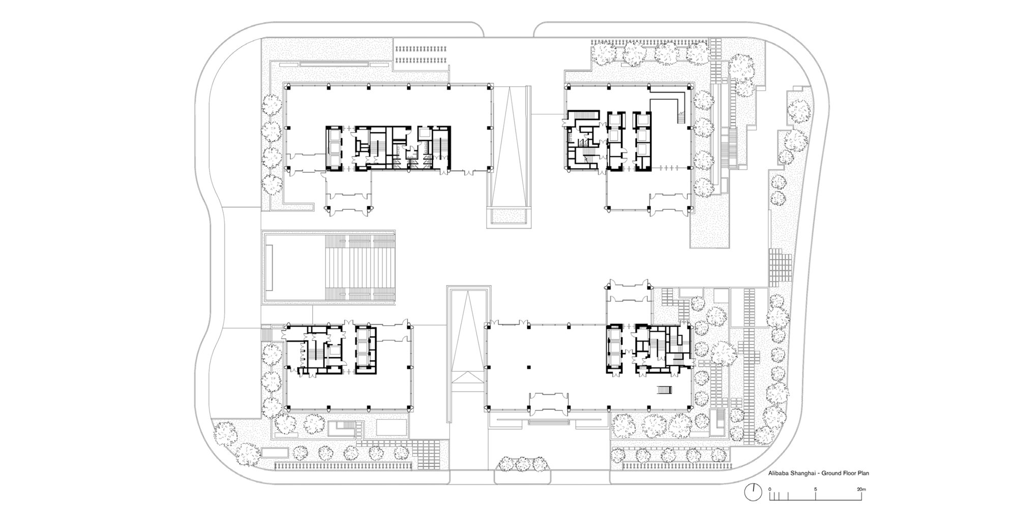
Alibaba’s new state-of-the-art offices are located in Shanghai’s Xuhui Riverside district. The design embodies Alibaba’s working ethos and completely reimagines the traditional model of the office, by prioritising public space and transparency, enhancing connections with nature, and creating a wide variety of highly collaborative workspaces that respond to the company’s dynamic team structure.
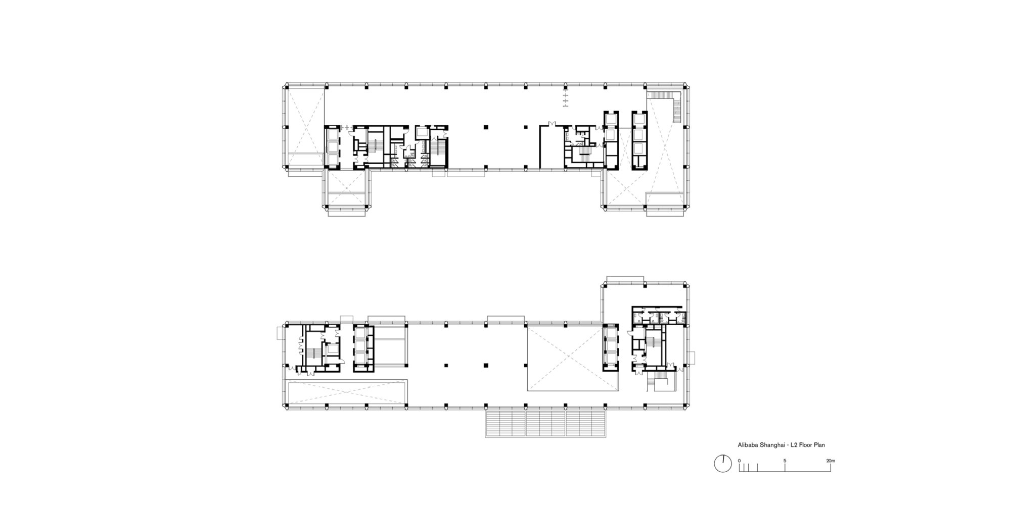
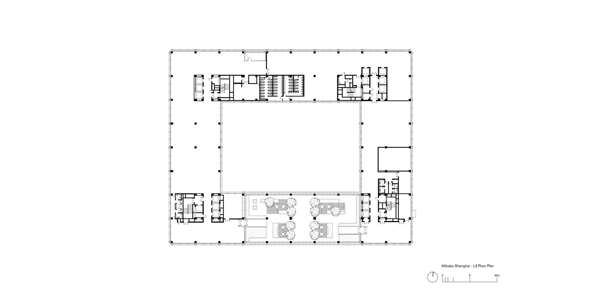
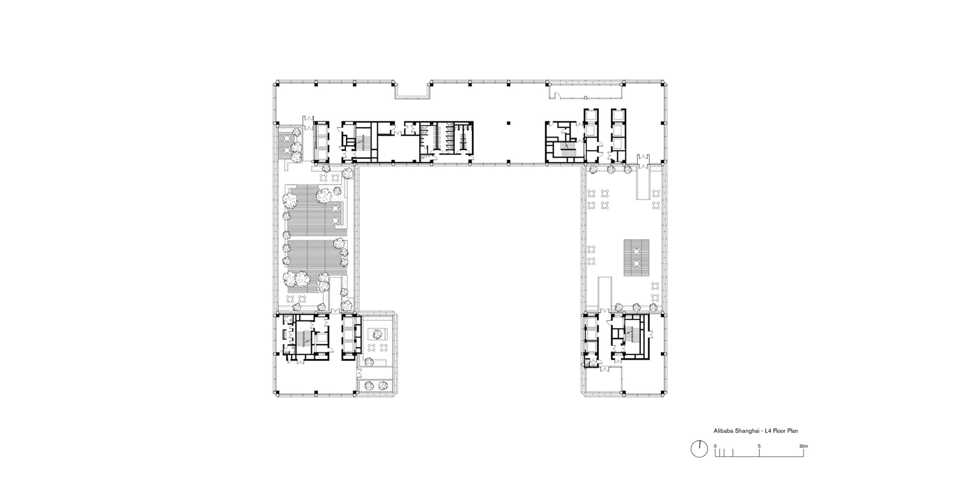
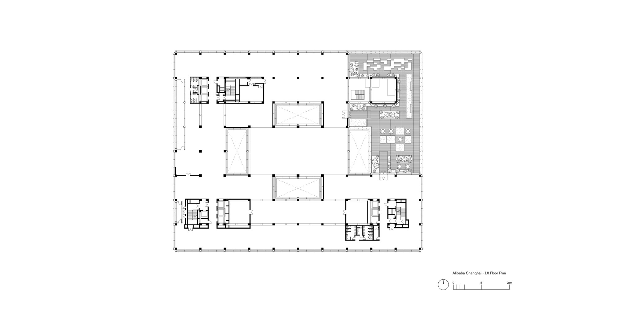
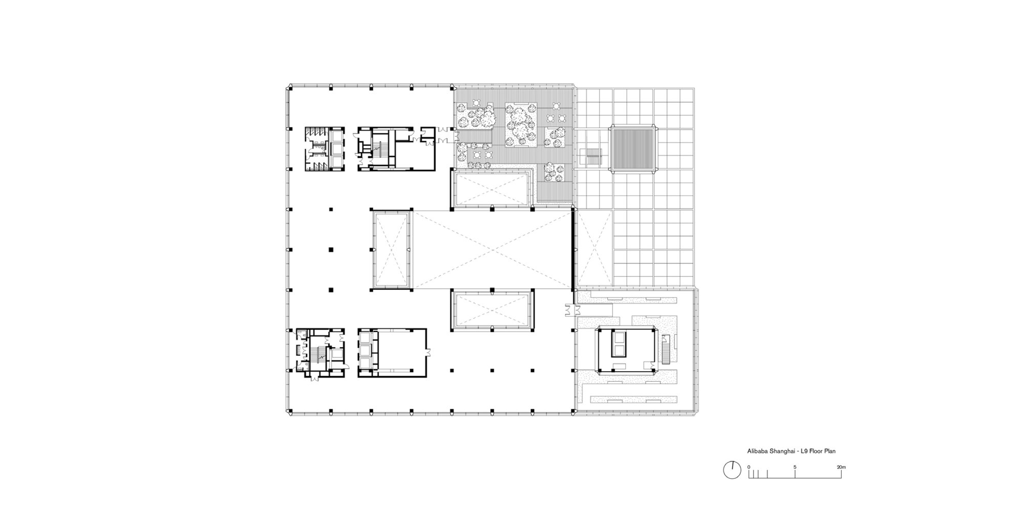
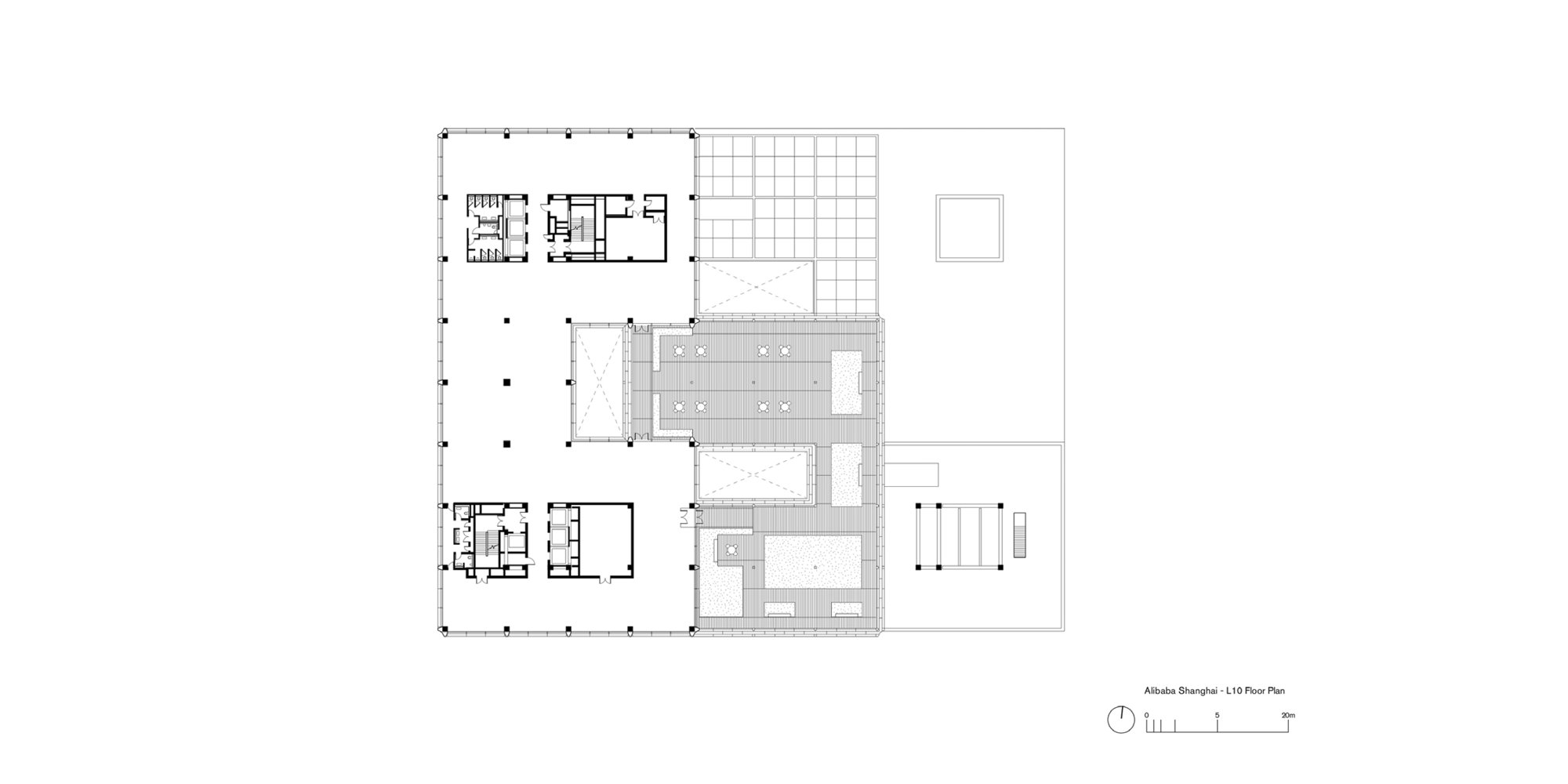
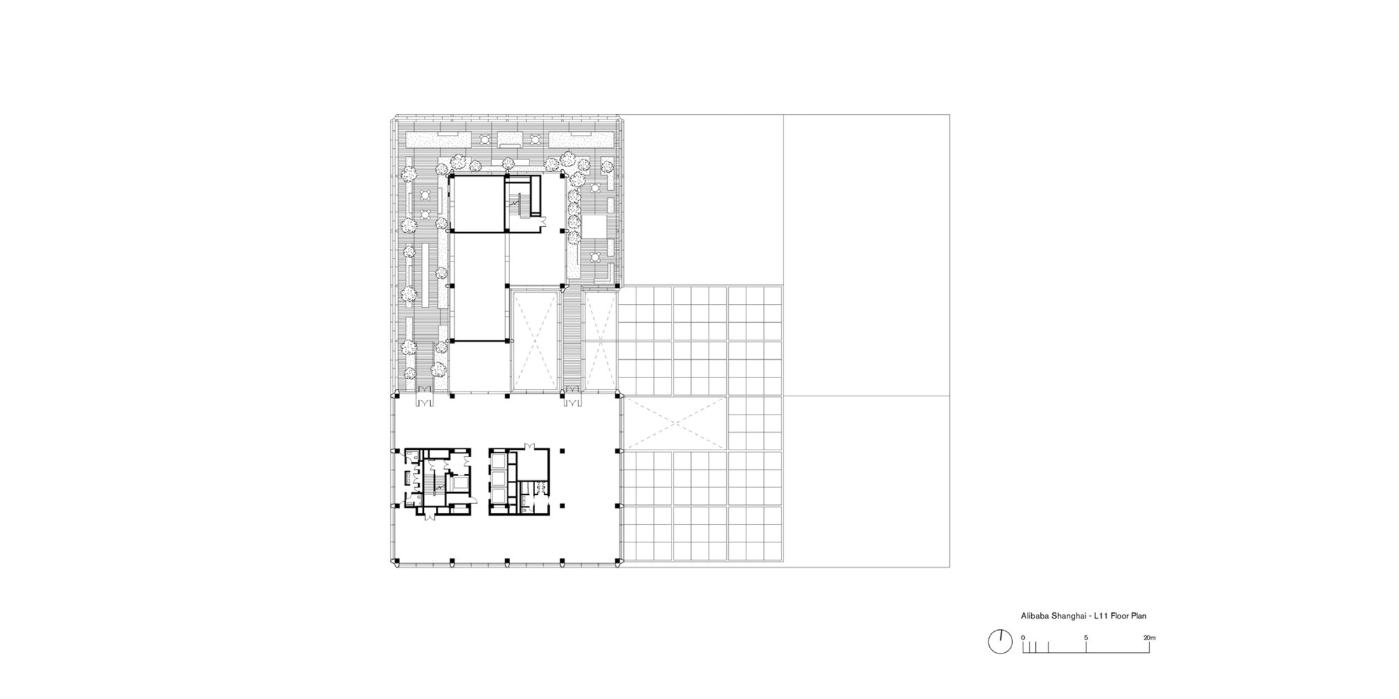
The office is formed around a central heart that opens up to create a large public urban room, inviting people in. This establishes an active social core, with viewing terraces overlooking the central space as well as the building’s principal entrances opening onto it. The building is designed to be extremely transparent, allowing people a glimpse into the world of Alibaba while preserving views of the outside, with an abundance of outdoor terraces for socialising and events. Variations between floorplates are also maximised to enhance flexibility across the whole building.
Health and wellbeing are cornerstones of the project, with vast green outdoor terraces – where employees can take in spectacular views of the Huangpu River and Pudong CBD – and the central public space encouraging connections with the outside world. All workspaces have operable windows and can be naturally ventilated, creating a healthy and productive working environment.
The practice developed a genetic algorithm, in line with Alibaba’s requirements, to optimise the building’s form in relation to environmental conditions, maximising outside views, and the specific area requirements for its different functions.














































