Stereotomy – the art of shaping stones for the construction of vaulted structures – is generally agreed to have taken hold in the Middle Ages, and later developed across Europe in the early modern period. Its influence soon waned as building technologies and materials evolved. Somewhat unconventionally, then, Fabio Tellia, architect at Foster + Partners, who specialised in the study of stereotomy, makes a case for its enduring relevance. By illuminating ways in which stereotomy’s core principles are translated in a range of Foster + Partners projects, Tellia reveals resonances between historical and contemporary ways of designing, drafting and constructing complex, curved forms.
17th April 2025
Vault, Arch and Dome: Constructing Complex Forms at Foster + Partners
This article explores the enduring relevance of what might initially appear as an outwardly specific and historically limited form of architecture – that of stereotomy. Stereotomy can be defined as the art of shaping stones for the construction of vaulted structures, like arches and domes. Emerging in Europe in the Middle Ages, on the building sites of Gothic cathedrals, stereotomy allowed stonemasons to build complex systems using stone as a load-bearing material.
Codified in original treatises in the sixteenth and seventeenth centuries, the discipline would wane by the 1800s with the advent of the industrial revolution and new building materials. However, scholarship in the last few decades has revived the study of stereotomy and argued its fundamental role in the construction culture of many countries.
Celebrating stereotomy and its position at the heart of Gothic architecture, we can identify it as pioneering extraordinary design and construction innovations for its day. The idea, then, to investigate stereotomy alongside the work of Foster + Partners was born from a generative collision between the old and the new, between oft hidden, but extraordinarily complex historic marvels of geometry and a contemporary architecture practice committed to social and environmental progress and to technological innovation. In this way, this exploration hopes to provoke discussions about the lessons of historic architecture, and the nature of our relationship with the technology, construction and design.
The Principles of Stereotomy
While it might be tempting to assume that skills and techniques closely associated with specific architectural styles and epochs – like stereotomy with the Gothic – would fade into irrelevance as taste and technology advance, it is more often the case that they simply adapt and evolve. Indeed, with a contemporary perspective, some of the stereotomy’s founding attributes have altered over time: the carrier is no longer confined to stone, and the technologies used to materialise the whole process have profoundly changed. However, stereotomy’s core principles have endured and can also be read with contemporary counterpoints in mind:
1. Drawing and the Art of Stereotomy. Stereotomy, as expressed in its drawings, prefigures that of the modern algorithmic or parametric tool by imagining different configurations of complex three-dimensional geometry through rationalised, two-dimensional projections.
2. Workflow and Standardisation. By subdividing and rationalising a complex surface in buildable components, stereotomy proposes a more efficient way to build, thus offering early examples of standardisation of workflow on the construction site. Such an approach, in turn, reduces waste and mistakes, contributing positively to the sustainability of a project.
3. Integrated Design and Innovation. Finally, stereotomy was an ambitious and exacting method of designing and building that brought together engineering and architecture, the mathematician and the craftsman: it is an example of the interdependence of structure and design, and how this could result in the elegant and integrated marriage of disciplines.
By examining certain architectural features from this different, perhaps unconventional perspective, and highlighting the cultural foundations of a specific design strategy, we can identify affinities between the geometrical and constructive knowledge of early stereotomic treatises and the design and construction methods used at Foster + Partners today.
This is not an attempt to trace a direct historical lineage between builders of the past and contemporary architecture, as stereotomy is a specific area of wider architectural production. Nevertheless, we can observe how markers of a stereotomic approach appear in many designs by Foster + Partners with a strong geometrical and technological characterisation. These principles, embedded in today's geometric and constructive knowledge, are naturally integrated into the design process, with architects employing solutions that resonate with earlier treatises and construction knowledge.
1. Drawing and the Art of Stereotomy
The production process of stereotomic architecture – both then and now – needs to solve three linked operations: design: an aesthetic intent to organise the joints between stones (building components) in a way that fulfils structural-geometrical requirements; template: an ability to describe geometrically any point of a vaulted system to produce the required templates, using a coherent and repeatable set of rules; and production: a stone-cutting (fabrication) protocol aiming at the efficient and standardized creation of any voussoir (building components), even with curved and non-orthogonal faces.
The development of these stereotomic operations was medieval in origin. However, although it predates the early modern period, it was first codified through beautifully illustrated treatises during the Renaissance, predominantly in Spain and France. The most widely known of these were those of Alonso de Vandelvira (1578) and Philibert de L’Orme (1567). These graphical texts – which can be understood as early iterations of an instruction manual – collected and published the teachings and constructive principles that had evolved during the Middle Ages and beyond, illustrating numerous typologies of arches, stairs, and complex vaulted systems. They also explored how these structures could be adapted, by showing different variations and methods of subdividing regular curved surfaces as spheres and cones, which could then be used to control and build double-curved surfaces and interlocking systems in stone.
Not unlike a complex parametric projection produced by computers today, the intricate drawings of the stereotomy designs are hard to decipher for the uninitiated. Often accompanied by an explanatory text, they communicate the geometric projections required to define all the templates necessary for producing the voussoirs – the wedge-shaped elements used in building an arch or vault – and the required stone-cutting instructions.
These drawings are not only instructions, but design tools that enabled stonemasons to precisely determine the position of each point on a three-dimensional surface of a vault and to appropriately dress each stone block into which the surface was subdivided. Interestingly, the development of descriptive geometry for these surfaces happened alongside the development of stereotomy, with one taking reference from the other – an example of the integration of drawing, engineering, and building.
Some of Foster + Partners’ earlier projects of shells and large span roofs were heavily based on Euclidean geometry to rationalise the design and streamline construction with the available building technology. The practice developed a drawing protocol (Geometry Method Statement) to communicate the design intent to the consultants and the contractor so the complex geometry could be described using the simplest possible series of steps. Nodes, lines and control points were used to locate a definite element in space, exactly as historic vault tracing would have done.
Drawing, by hand and later with the aid of computers, is foundational to the design process at Foster + Partners. For the studio’s founder, Norman Foster, early sketches, studies and experiences reveal a deep engagement with the construction systems of buildings. From a young age, he gained a keen awareness of architecture by carefully studying buildings, identifying their components, and graphically representing them. Coincidentally, as a teenager, Foster was beginning to draw stereotomic vaulted systems typical of the Neo-gothic architecture where he worked:
The first building that shaped my future was Manchester Town Hall, where I started work at the age of 16. The Victorian-Gothic architecture was magnificent – it impressed me then and still moves my spirits today. I spent most lunch breaks wandering around buildings in the city, drawn to them for the aesthetic experience.
Norman Foster
A young Foster was encountering an architectural history that had already been in motion for centuries. Broadly speaking, in the sixteenth and seventeenth centuries, the Renaissance had prompted a renewed interest in classical artistic forms and the retrieval of an antiquated past . In the following century, Enlightenment philosophy had begun to take hold and, with it, an emphasis on empirical study, the ‘rational’ recording of experience, and evidence-based thinking. These dual movements – which might at first seem incongruous – were fused in intellectual endeavours such as the Grand Tour, which encouraged the direct and sustained study of ancient architecture. Almost every notable British architect between 1750 and 1840 travelled to Rome, spending years sketching, measuring, and assessing ancient ruins and Renaissance efforts to reinterpret the lapsed wisdom of their builders. By the mid-nineteenth century, however, there was a sea change in the appeal of the lessons of Rome, the decline of which was epitomised in the United Kingdom by the decision to rebuild the Palace of Westminster in a Gothic rather than a Roman style.
In towns and cities across the country, local governments would follow suit as Gothic Revival architecture became almost synonymous with the British municipal building. In Manchester, for example, the Neo-Gothic Town Hall was completed to designs by Alfred Waterhouse soon after the Palace of Westminster. Less than a century later Norman Foster would work there as a junior clerk.
The Neo-Gothic Manchester Town Hall (1877), Albert Square, Manchester, UK, designed by Alfred Waterhouse (1830–1905).
Particularly intriguing are Foster’s diagrams of various Gothic vault types and geometries, collected in his later student sketchbook, as well as a series of plan and perspective drawings of Gloucester Cathedral. Across his studies, Foster demonstrated a particular fascination with fan vaults, which he carefully analysed and illustrated in their structural complexity.
Nothing can surpass fan vaulting as a triumph of building skill.
Norman Foster
Originating as a Gothic innovation in the West Country, fan vaults represent an extraordinary achievement in stereotomic vaulting and remain a quintessentially English design. The surface of the fan is generated by the rotation of an arch around its vertical axis, this can also be described as the inner half of a torus. While deeply rooted in the Gothic tradition, they introduced a refined sense of volumetry and a construction system that aligned more closely with the stone-cutting protocols used in the Renaissance.
Study by a young Norman Foster on ‘The Development of Vaulting in Gothic Architecture.’ © Norman Foster Foundation Archive
Foster is not an architect necessarily associated with the Gothic but, through drawing and study, he has illustrated his close engagement with its stereotomic principles, which can be seen translated into numerous Foster + Partners projects. Though the style and overall effects are distinct, the principles of stereotomy – to simplify complex space through integrated parts, to draw a rationalised building template, and to build efficiently – can be identified.
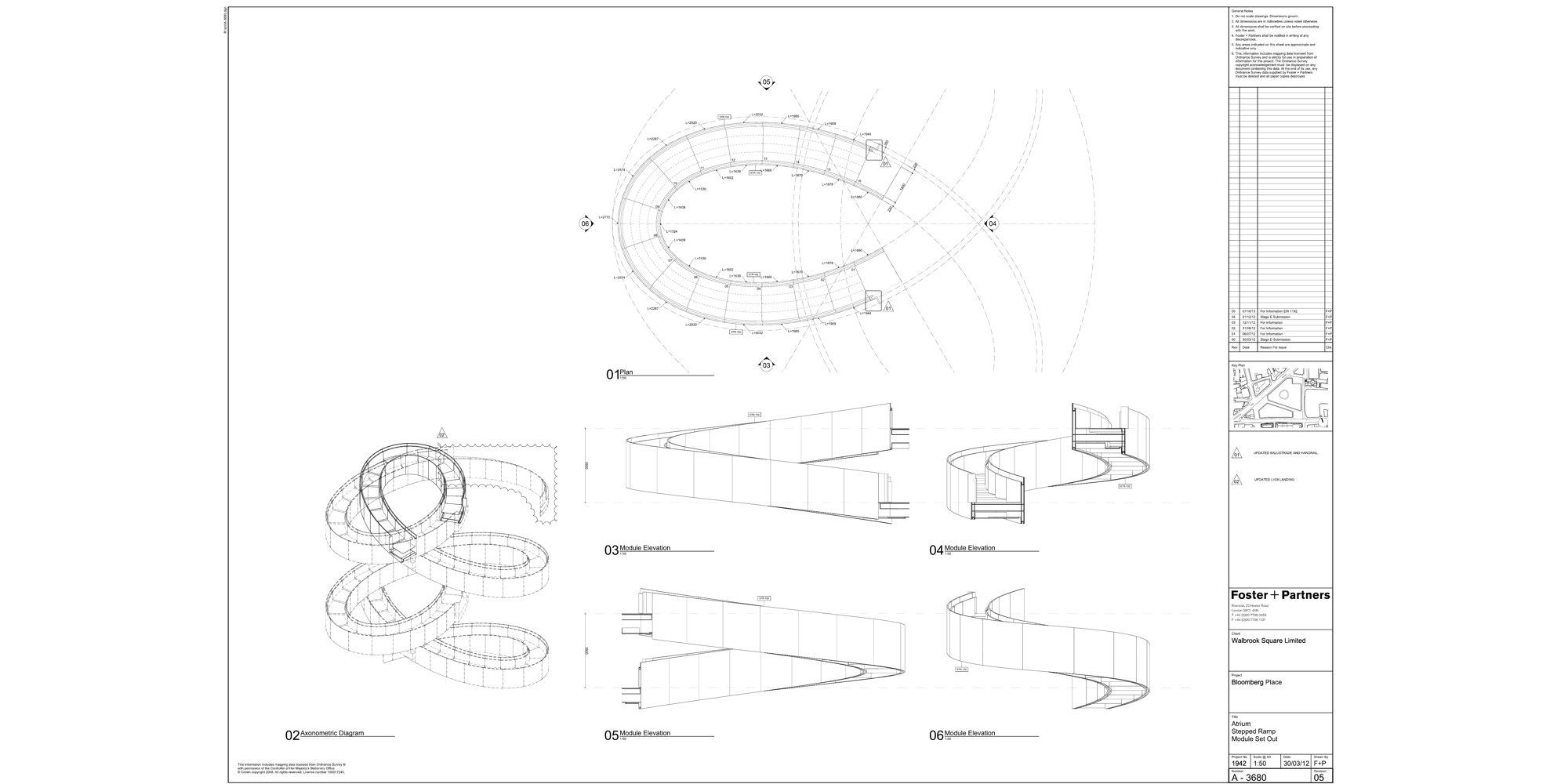
Geometry method statement and detail drawings for the complex hypotrochoid curving ramp at Foster + Partners’ Bloomberg headquarters in London, UK (2017). © Foster + Partners
Geometry method statement and detail drawings for the complex hypotrochoid curving ramp at Foster + Partners’ Bloomberg headquarters in London, UK (2017). © Foster + Partners
Geometry method statement and detail drawings for the complex hypotrochoid curving ramp at Foster + Partners’ Bloomberg headquarters in London, UK (2017). © Foster + Partners
What’s more, though it began with stone, stereotomy today is not confined to it. By using innovative technologies, the stereotomic teachings of the early modern period are tested, reimagined, and explored in Foster + Partners’ projects, using cutting-edge technology that can achieve complex geometries (that were not possible at the time of the treatises); case studies capture contemporary manifestations of the discipline in a range of load-bearing materials.
2. Workflows and Standardisation
The surviving Gothic manuscripts on stonecutting provide some of the first documented instructions on building optimisation and standardisation, by expressing complex shapes through sets of simpler ones. Drawings of complex ribbed vaults depict arches of equal radius, for example, which meant that fewer types of arches were needed. This became highly beneficial to the organisation of the work site, simplifying the numbering and classifying of pieces for storage and minimising errors; making the transmission of orders from the master to the stonemason easier; and simplifying and streamlining the stone-cutting process. Only the keystones, which are the most complex components of a rib vault, were carefully designed and cut by the most experienced stonemasons.
Another classical problem of construction – the subdivision of the surface of a sphere in tiles – also occupied several pages of stereotomy treatises and was similarly solved through ideals of standardisation and simplification. Many centuries later, it underpins the panel structure design of the glass dome of Foster + Partners’ Reichstag in Berlin, Germany (1999), which is a half sphere subdivided into parallels.
The geometric procedure used to produce the templates is known as a ‘conic projection’. This method approximates the curved surface of a sphere by dividing it into smaller sections that resemble a portion of a cone. By breaking down the curvature of the sphere into simpler, developable surfaces, it becomes easier to design and manufacture the panels.
During the Renaissance, conic projection was also used to create templates for squinch vaults – half-conical structures that allowed the transition from a square plan to an octagonal geometry. These vaults enabled, for instance, the connection between a church’s squared crossing and the octagonal or circular base of a dome. The same geometric principle has also been used to post-rationalise the construction of the glass surfaces of the London City Hall as stacked cones and to produce two-dimensional drawings of the glass curtain wall.
Another effective approach to design optimized shells is by using translation surfaces, which are created by sliding a planar curve along another, while keeping its shape and orientation unchanged. This method of vault design regularisation was used during the Renaissance in relation to the grid-crossing vault (the bovedas por cruceros) described in Vandelvira’s treatise. It was conceived to produce vaulted surfaces that could have been covered by flat stone panels placed between the perpendicular structural ribs (cruceros) of the vault.
The resulting vault may seem spherical, but it is significantly easier to build, as all the crossing arches conforming the intrados – the lower or inner curve of an arch – are of the same curvature. Moreover, the stone panels placed between the crossing arches are flat quadrilateral blocks, potentially pre-carved on the inner side before being set in place to create the vault’s curved surface.
Though centuries old, the principles of optimisation achieved with these kinds of vaults are undeniably modern. The geometric properties of translation surfaces have been used to define the shell enclosing Foster + Partners’ MIST-Knowledge Centre for Masdar City, UAE (2010), where all primary structural beams are defined by an overall identical geometry.
The geometric definition of the structural beams of Foster + Partners’ MIST-Knowledge Centre at Masdar, UAE.
Geometric definition of a grid-crossing vault with highlighted the flat panel that could be laid between the grids.
The geometric definition of the structural beams of the MIST-Knowledge Centre and the underside of the roof. © Nigel Young / Foster + Partners.
3. Integrated Design and Material Innovation
Concurrent with the height of stereotomy’s position within architectural discourse, and expressed by the treatises of de l’Orme and Vandelvira, was the belief that the architect, or master builder, needed to be more than just a creative lead. De l’Orme, particularly, demanded more. In his stringent view, the architect needed not only their lettres – the philosophical and scientific knowledge, in particular geometrical and astronomical, of any sixteenth-century humanist – but also a thorough knowledge of ancient architecture and an unfailing practical expertise. These demands are expressed in strong terms in the first pages of his Premier Tome de l’architecture (1567), illustrated with images of the good and the bad architect.
Speaking from his own considerable experience, de L’Orme expected a good architect to know their trade: how to lead the workers and manage a site, choose dry wood, good rubble, and the best soil for foundations; how to design and draw a building, from the ground plan to the detail of the panelling; how to write an estimate; and how to draft a contract.
There are comparisons between the expectations that de L’Orme placed on the Renaissance architect and the process of design and practice set out by Norman Foster when founding Foster Associates in 1967. Although the complexity of modern construction no longer affords one person such a wide-ranging set of expertise, for Foster, this was codified in the practice structure and defined as a way of working together with different disciplines, all interacting across a round table. It is a philosophy, underpinned by a capacity for assimilation and synthesis, that is often referred to as ‘integrated design,’ and has been fundamental to Foster + Partners ever since.
A particularly complex stereotomic construction – and an example of the tight integration of architecture, engineering, geometry, mathematics and ornament – is documented in Vandelvira’s treatise and describes a very particular vault based on the torus, a doughnut-shaped surface created by spinning a circle around a central axis. A remarkable example is the sixteenth-century Junterón chapel (boveda de Murcia) inside Murcia Cathedral, Spain.
The first of the numerous examples built by Foster + Partners with this geometry – itself a close collaboration between architects and engineers at Arup – was the vaulted roof of the Air Museum in Duxford (built in 1997). Defined geometrically as a portion of a torus, it spans up to 90 metres (295 feet) and is 18 metres (59 feet) high, and is built with a double shell made with two 100-millimetre- (3.9-inch-) thick precast concrete units spaced 900 millimetres (35.4 inches) apart.
The precast units of the lower shell, produced in a factory to minimise cost and waste, have an inverted-T cross-section bearing the cast-in reinforcements of the connections. Once all the panels were put into place, the precast units were stitched together on site with concrete to form continuous ribs to which real airplanes are currently hung as part of the museum’s permanent exhibition. The geometry of the precast units started from the subdivision of the torus, which was defined by only two constant radii, in 924 panels made from only six sets of standard components.
The use of precast components mixed with concrete on site to form a vaulted structure is also celebrated in the Queen Alia International Airport in Amman, Jordan (2012). The roof canopy comprises a series of shallow concrete domes, resting on four arches which branch out from the supporting columns through split beams. The columns, spaced 25 metres (82 feet) from each other, were cast on site, while the column heads, the arches and the roof shells were hollow precast elements that were later glued together by collocating additional reinforcement and an on-site concrete pour.
The architecture and structure emerged at the same time – this is how we like it to be, and it creates the best designs. The structural concept for the project came to us very early in the design process and was a result of the close collaboration … Both are essential and both need to be in harmony at the outset.
Mike Cook, Engineer at Buro Happold, who collaborated closely with Foster + Partners
The constructive approach of the airport roof structure effectively subdivided and serialized its components. These pieces were also shaped to facilitate the positioning of the precast elements and to ensure a seamless surface at the intrados of the arch, creating an interlocking system like the stereotomic principle of ‘joggled voussoirs.’
Joggled voussoirs are wedge-shaped stones featured notches that interlocked with adjacent stones, serving both as an effective decorative system coordinated with the structural block. They were widely used in the construction of arches and lintels especially in Mamluk architecture and offer a useful additional support mechanism, particularly in earthquake-prone areas.
Additionally, in the Queen Alia International Airport, the precast column heads were geometrically defined through Boolean operations in a CAD model, which was also used to generate construction moulds by slicing the model into multiple parallel planes and transmitting the extracted contour lines to the fabricator. We can see an analogy with the construction of the Gothic Tas-de-charge, the lower horizontal courses of ribs in a Gothic vault just above the spring line, from which the arches emerge. Stonemasons created multiple templates, taken at regular intervals, to represent the horizontal sections of the base of the arches, ensuring precise control over the exact height and angle of departure of each rib.
Integration of disciplines and technicians enabled the great scope for experimentation and variation within this standardised way of producing and assembling a vaulted structure. This also extended to material innovation and evolution. While stereotomy was related almost exclusively to stone during its foremost development, later treatises on the subject expanded its definition to include timber if the construction principles followed the same thinking, as we can find in the treatises of Rovira i Rabassa (1900).
If a stereotomic approach can extend to renewable materials such as timber, then it can be used in components in diagrids and machine-cut shapes for doubly curved arches. The canopy of Crossrail Place in Canary Wharf, London (2015), for example, shares some of the challenges faced by the master builder of a wagon vault in a Gothic cathedral. In both cases, designers organised the constructive process by reducing the number of unique pieces and used differently shaped keystones to absorb the discontinuities between the ribs of the vault.
The grid-like canopy enclosing the Crossrail station is a 300-metre- (984-foot-) long timber lattice roof that wraps around the building. The system is composed of more than 1,400 straight timber beams connected to steel nodes; despite the smooth curve of the enclosure, there are only four types of curved timber beams in the entire structure.
To seamlessly connect the straight beams, which rotate successively along the diagonals, the design team developed an innovative system of steel nodes that resolves the twist. The geometrical complexities produced by the arch have been moved into the receiving arms of the steel nodes connecting the timber beams, resulting in a simpler production for the other components of the roof. In its intellectual approach and rigour, this procedure resembles the construction process of Gothic rib vaults.
Stereotomy Discovery
In few contexts, natural stone is the ideal material for a project, yet its use in construction presents significant conceptual challenges. While we have shown the contemporary interpretations of stereotomic principles can result in remarkably efficient and economical buildings, ironically, under modern industry standards, building with load-bearing stone can be both technically difficult and not always economically viable.
As a result, for several decades, architects have used stone panel facade systems hung on backing frames, which come with their inherited limitations. However, there are exceptions and variations to this approach. One such example is Foster + Partners’ Bloomberg headquarters in London (2017). In this project, architects and engineers envisioned a highly integrated facade system that seamlessly blends traditional features with modern technologies. Though not stereotomic design, it is worth mentioning Bloomberg as a benchmark project for the use of stone in contemporary building construction and its integration with other systems.
One particularity of Bloomberg is its large – almost megalithic – component approach to the stone facade. To achieve the depth and a specific aesthetic appeal, the facade is articulated with horizontal and vertical stone fins that were fabricated as finished components off-site and assembled at a later stage when required by the construction programme. To give shape to the original design intent and to respect constructive constraints and site logistics, Jurassic limestone was used together with other materials. It was cut to size and attached to precast concrete units as a stay-in-place mould which spans the length of a structural bay (more than 12 metres [39 feet]). The extremities of these units were left uncovered by the stone to expose the fixing system in steel. Once the fins had been connected to the supporting structure, these nodes were covered by a special cross-shaped stone piece. The complex curved cut of the stone elements of the facade was executed in Italy with CNC machines, and each stone was hand-finished by highly skilled masons.
St. Paul’s Cathedral – a masterpiece by Sir Christopher Wren built between 1675 and 1710 – stands nearby as historical counterpart to Bloomberg, reminding us of the enduring presence and allure of stone in the built environment. While we may need to move beyond the notion of replicating traditional construction methods, embracing the design principles inspired by historical architecture can result in creations that honour a city's heritage and history. The principles and constructive logic of master builders from the past can manifest in contemporary forms without falling into pastiche.
St Paul’s Cathedral in the background, Bloomberg in the foreground; a conversation between old and new. © Nigel Young / Foster + Partners
St Paul’s Cathedral in the background, Bloomberg in the foreground; a conversation between old and new. © Nigel Young / Foster + Partners
Though the artisan practice of stereotomy has dwindled, its principles, clearly, have not expired; the concerns of how to visualise the complex construction of a space; how to innovate and energise the process of building in the name of both efficiency and beauty; and how to absorb and learn from multiple new perspectives, is essential for building more resilient, adaptable structures and increasingly relevant in today’s climate and resource emergency. Responses to these concerns reverberate throughout many of our architectures – whether a bridge, a cathedral, a parliament, or a skyscraper – and find resonance in the work of both Renaissance stonemasons and Foster + Partners alike. It would seem that the lessons of stereotomy are not lost but perpetually rediscovered.
Tellia's works on Stereotomy at Foster + Partners was first published here: Stereotomy and Architectural Design at Foster + Partners | Nexus Network Journal
Author
Dr Fabio Tellia
Author Bio
Dr Fabio Tellia is an Architect at Foster + Partners. He holds a Master's degree in Architecture from IUAV in Venice and a PhD in Building Heritage from the Polytechnic University of Madrid. Specializing in stone stereotomy and the construction of Gothic rib vaults, Dr Tellia has published numerous academic articles and developed original stone prototypes. One of his key contributions to the history of construction is the rediscovery and analysis of a Catalan treatise on stereotomy. With hands-on experience in traditional stonecutting, he has also designed and built a Gothic rib vault, merging historical craftsmanship with modern research.
Editors
Tom Wright and Clare St George




















































