View the 360 tour
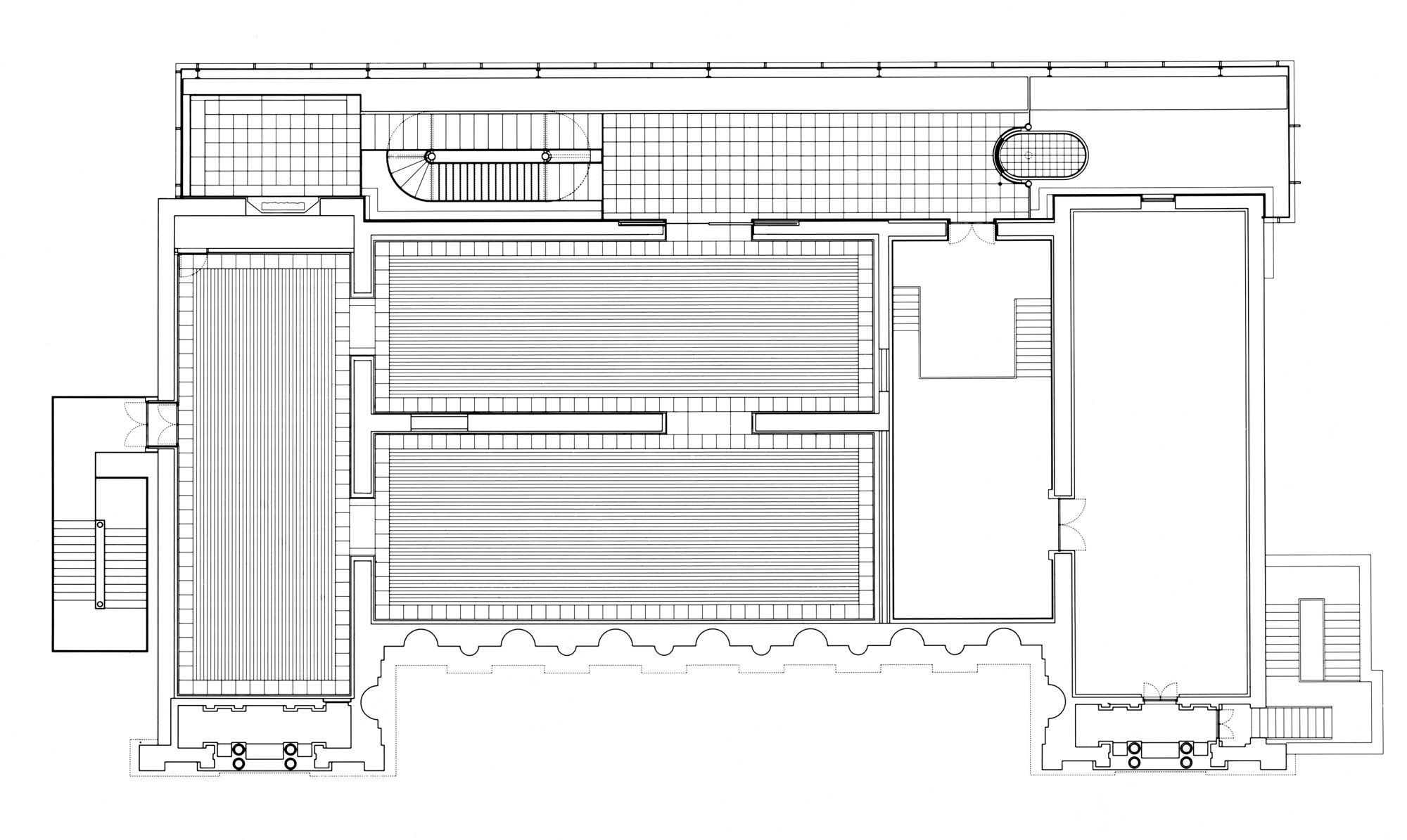
The commission for the Sackler Galleries at the Royal Academy of Arts provided the practice with its first opportunity to work within the context of a historic building and on a retrofit project. Although perceived by the visitor as a single entity, the Royal Academy in fact consists of two buildings: the original Palladian house, converted by Lord Burlington in the eighteenth century, and a Victorian gallery block behind, linked by a grand central staircase. The project brief required the replacement of the undistinguished nineteenth-century Diploma Galleries at the top of Burlington House and the improvement of access routes throughout the building.
The key to unlocking the design solution was the rediscovery of the light well between Burlington House and the Victorian galleries, into which a new lift and staircase were inserted. In the process redundant historical accretions were peeled away, revealing the garden facade of Burlington House for the first time in over a century. Cleaned and repaired, it contrasts strikingly with the Victorian structure and the free-standing new insertions. The new work is demonstratively of its own time, using modern materials for modern ends, but it also enables a rediscovery of the potential of Burlington House and the Victorian galleries, much of which had become inaccessible over time.
In addition to this historical reclamation, the Sackler Galleries achieved new environmental standards, allowing the Royal Academy to meet the exacting criteria set by international exhibitions. These include a glazed reception area, which incorporates the parapet of the Victorian galleries, now recast as a display space for sculpture from the Academy’s permanent collection. Notable along this simultaneously modern and antique route is Michelangelo’s tondo of the Virgin and Child with the Infant St John. The Royal Academy was the first in a line of projects to articulate a clear philosophy about how contemporary interventions can be made in historical structures – a theme subsequently explored in the Reichstag in Berlin and the Great Court at the British Museum.


































